For Sale By Auction | 09:30, 10 September 2025 | Lot 73A

6 Heol Y Parc, Cefneithin, Llanelli, Dyfed, SA14 7DE

*Guide | £120,000+ (plus fees)

  • Semi-Detached House
  • 3 Bedrooms
  • Tenure: Freehold

Call the team on 020 7625 9007 for more information

Auction Date

Wed 10/09/2025

Auction Time

09:30

Auction Venue

Live Stream

Viewing Times:

Fri 29 Aug

11:00-11:30

Tue 2 Sep

11:00-11:30

Thu 4 Sep

11:00-11:30

Sat 6 Sep

11:00-11:30

Tue 9 Sep

11:00-11:30

A Vacant Three Bedroom Semi Detached House. Potential for Development (Subject to Obtaining all Relevant Consents)

The property comprises a three bedroom semi detached house arranged over ground and first floors.

Tenure

Freehold

Location

The property is situated on a residential road close to local shops and amenities. The open spaces of Parc Cefneithin Park are within easy reach. Transport links are provided by Ammanfordrail station.

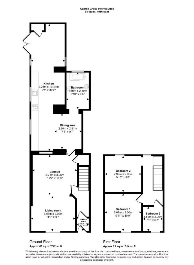
Accommodation

Ground Floor Reception Room Kitchen Bathroom First Floor Three Bedrooms

Exterior

The property benefits from both front and rear gardens, a large outbuilding and off street parking.

Energy Efficiency Rating (EPC)

Current Rating E

Services

Interested parties are requested to make their own enquiries to the relevant authorities as to the availability of services.

Important Notice to Prospective Buyers:

We draw your attention to the Special Conditions of Sale within the Legal Pack, referring to other charges in addition to the purchase price which may become payable. Such costs may include Search Fees, reimbursement of Sellers costs and Legal Fees, and Transfer Fees amongst others.

Additional Fees

Administration Charge - Purchasers will be required to pay an administration fee of £1,500 inc VAT

Disbursements - Please see the legal pack for any disbursements listed that may become payable by the purchaser on completion.