For Sale By Auction | 09:30, 16 October 2025 | Lot 80

126 De Montfort Way, Coventry, West Midlands, CV4 7DT

Sold £590,000

  • Detached House
  • 7 Bedrooms
  • Tenure: Freehold

Call the team on 020 7625 9007 for more information

Auction Date

Thu 16/10/2025

Auction Time

09:30

Auction Venue

Live Stream

Viewing Times:

Thu 2 Oct

12:00-12:30

Sat 4 Oct

12:00-12:30

Tue 7 Oct

12:00-12:30

Thu 9 Oct

12:00-12:30

Sat 11 Oct

12:00-12:30

Tue 14 Oct

12:00-12:30

Wed 15 Oct

12:00-12:30

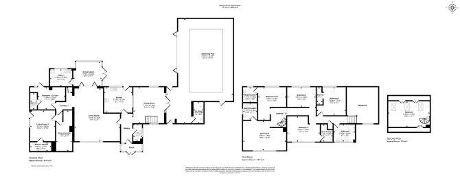
A Vacant Seven Bedroom Detached House

The property comprises a seven bedroom detached house arranged over ground and two upper floors.

Tenure

Freehold

Location

The property is situated on a residential road close to local shops and amenities. The open spaces of Cannons Park are within easy reach. Transport links are provided by Canley rail station.

Accommodation

Ground Floor Two Reception Rooms Kitchen Two Bedrooms with En-Suites Storage Room Utility Room Conservatory Swimming Pool Two Separate WCs First Floor Four Bedrooms with En-Suites Bathroom Second Floor Bedroom

Exterior

The property benefits from both front and rear gardens.

Energy Efficiency Rating (EPC)

Current Rating C

Services

Interested parties are requested to make their own enquiries to the relevant authorities as to the availability of services.

Important Notice to Prospective Buyers:

We draw your attention to the Special Conditions of Sale within the Legal Pack, referring to other charges in addition to the purchase price which may become payable. Such costs may include Search Fees, reimbursement of Sellers costs and Legal Fees, and Transfer Fees amongst others.

Additional Fees

Administration Charge - Purchasers will be required to pay an administration fee of £1,800 inc VAT

Disbursements - Please see the legal pack for any disbursements listed that may become payable by the purchaser on completion.

View Larger Map

Disclaimer: The map preview provided above is for general guidance only and may not accurately reflect the exact location or surrounding buildings. Prospective buyers and interested parties are strongly advised to independently verify the precise location and surroundings before bidding.