For Sale By Auction | 09:30, 16 October 2025 | Lot 125

23 Shirley Hills Road, Croydon, Surrey, CR0 5HQ

*Guide | £1,200,000+ (plus fees)

  • Detached House
  • 5 Bedrooms
  • Tenure: Freehold

Call the team on 020 7625 9007 for more information

Auction Date

Thu 16/10/2025

Auction Time

09:30

Auction Venue

Live Stream

Viewing Times:

Thu 2 Oct

13:30-14:00

Mon 6 Oct

13:30-14:00

Wed 8 Oct

13:30-14:00

Fri 10 Oct

13:30-14:00

Tue 14 Oct

13:30-14:00

A Vacant Five Bedroom Detached House in Need of Modernisation

The property comprises a five bedroom detached house arranged over ground and first floors. The property requires a program of refurbishment.

Tenure

Freehold

Six Week Completion Available

Location

The property is situated on a residential road close to local shops and amenities. The open spaces of Lloyd Park are within easy reach. Transport links are provided by South Croydon rail station.

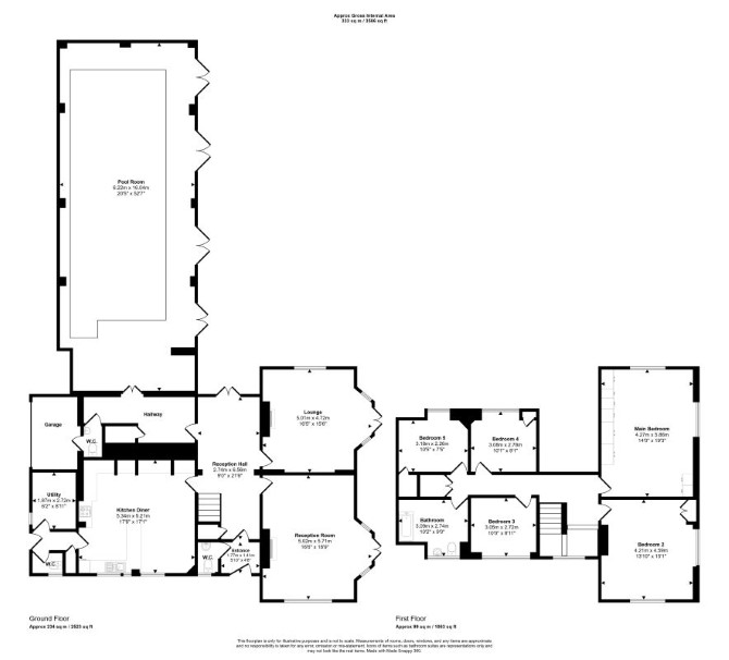
Accommodation

Ground Floor Two Reception Rooms Kitchen/Diner Utility Room Sauna Room Gym Swimming Pool Two WC's First Floor Five Bedrooms Bathroom

Exterior

The property benefits from a garage, both front, side and rear gardens and off street parking.

Energy Efficiency Rating (EPC)

Current Rating C

Services

Interested parties are requested to make their own enquiries to the relevant authorities as to the availability of services.

Important Notice to Prospective Buyers:

We draw your attention to the Special Conditions of Sale within the Legal Pack, referring to other charges in addition to the purchase price which may become payable. Such costs may include Search Fees, reimbursement of Sellers costs and Legal Fees, and Transfer Fees amongst others.

Additional Fees

Administration Charge - Purchasers will be required to pay an administration fee of £1,500 inc VAT

Disbursements - Please see the legal pack for any disbursements listed that may become payable by the purchaser on completion.

View Larger Map

Disclaimer: The map preview provided above is for general guidance only and may not accurately reflect the exact location or surrounding buildings. Prospective buyers and interested parties are strongly advised to independently verify the precise location and surroundings before bidding.