For Sale By Auction | 09:30, 16 October 2025 | Lot 81

56 Littlebury Road, Clapham, London, SW4 6DN

*Guide | £395,000+ (plus fees)

  • Flat
  • 1 Bedroom
  • Tenure: Leasehold. The property is held on a 194 year lease from 29th September 1973 (thus approximately 142 years unexpired).

Call the team on 020 7625 9007 for more information

Auction Date

Thu 16/10/2025

Auction Time

09:30

Auction Venue

Live Stream

Viewing Times:

Fri 3 Oct

11:00-11:30

Tue 7 Oct

11:00-11:30

Thu 9 Oct

11:00-11:30

Wed 15 Oct

11:00-11:30

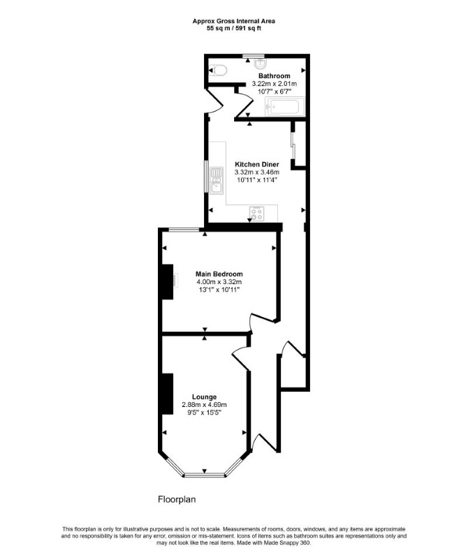
A Ground Floor One Bedroom Flat. Offered with Vacant Possession.

The property comprises a ground floor one bedroom flat situated within a mid terrace building arranged over ground and first floors.

Tenure

Leasehold. The property is held on a 194 year lease from 29th September 1973 (thus approximately 142 years unexpired).

Location

The property is situated on a residential road close to local shops and amenities. The open spaces of Clapham Common Park are within easy reach. Transport links are provided by Clapham North underground station (Northern line) and Clapham High Street overground station.

Accommodation

Ground Floor Reception Room Kitchen Bedroom Bathroom

Exterior

The property benefits from a rear yard.

Energy Efficiency Rating (EPC)

Current Rating C

Services

Interested parties are requested to make their own enquiries to the relevant authorities as to the availability of services.

Important Notice to Prospective Buyers:

We draw your attention to the Special Conditions of Sale within the Legal Pack, referring to other charges in addition to the purchase price which may become payable. Such costs may include Search Fees, reimbursement of Sellers costs and Legal Fees, and Transfer Fees amongst others.

Additional Fees

Administration Charge - Purchasers will be required to pay an administration fee of £1,500 inc VAT

Disbursements - Please see the legal pack for any disbursements listed that may become payable by the purchaser on completion.

View Larger Map

Disclaimer: The map preview provided above is for general guidance only and may not accurately reflect the exact location or surrounding buildings. Prospective buyers and interested parties are strongly advised to independently verify the precise location and surroundings before bidding.