Withdrawn | Lot 75A

427A/B Upminster Road North, Rainham, Havering, RM13 9SA

Withdrawn

  • Land
  • Tenure: Freehold

Call the team on 020 7625 9007 for more information

Auction Date

Thu 16/10/2025

Auction Time

09:30

Auction Venue

Live Stream

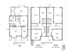
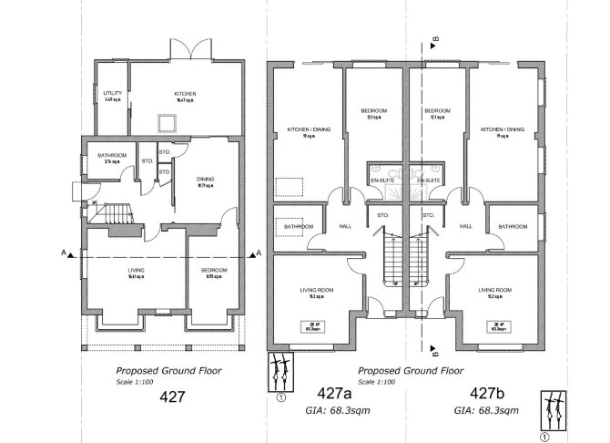
A Plot of Land Measuring Approximately 360 sq m (3,875 sq ft). Planning has been Submitted for the Erection of 2 x Two Bedroom Houses.

The lot comprises a plot of land measuring approximately 360 sq m (3,875 sq ft).

Tenure

Freehold

Location

The land is situated on a residential road close to local shops and amenities. The open spaces of Spring Farm Park are within easy reach. Transport links are provided by Rainham rail station.

Planning

The following planning application has been submitted to Havering Council (ref: PP-14218876) on 5th August 2025 : 'Subdivision of the land, erection of a x2 2-bed dwellinghouses adjacent to the existing dwelling with alterations to the existing fenestration'. A decision for this application is pending. Auction House London make no representations or warranties with regard to this scheme and/or the validity of the aforementioned application. Buyers must rely on their own enquiries with regard to any development potential, permissions required and previous planning history in respect of this site.

The site area depicted within the plan in the auction particulars is for indicative purposes only. Additionally, any measurements stated may not be exact. Some or all of the plot may comprise adopted highway land and if the site has trees, there may be Tree Preservation Orders in place. Buyers should rely on their own enquiries with regard to precise measurements, any consents or rights over the land and any possible development potential or alternative uses for this site.

Services

Interested parties are requested to make their own enquiries to the relevant authorities as to the availability of services.

Important Notice to Prospective Buyers:

We draw your attention to the Special Conditions of Sale within the Legal Pack, referring to other charges in addition to the purchase price which may become payable. Such costs may include Search Fees, reimbursement of Sellers costs and Legal Fees, and Transfer Fees amongst others.

Additional Fees

Administration Charge - Purchasers will be required to pay an administration fee of £1,800 inc VAT

Disbursements - Please see the legal pack for any disbursements listed that may become payable by the purchaser on completion.

View Larger Map

Disclaimer: The map preview provided above is for general guidance only and may not accurately reflect the exact location or surrounding buildings. Prospective buyers and interested parties are strongly advised to independently verify the precise location and surroundings before bidding.