For Sale By Auction | 10:00, 13 November 2025 | Lot 163

78 Bradmore Way, Coulsdon, Surrey, CR5 1PB

Sold £406,000

  • Detached House
  • 2 Bedrooms
  • Tenure: Freehold

Call the team on 020 7625 9007 for more information

Auction Date

Thu 13/11/2025

Auction Time

10:00

Auction Venue

Live Stream

Viewing Times:

Tue 4 Nov

15:15-15:45

Thu 6 Nov

15:15-15:45

Sat 8 Nov

10:00-10:30

Mon 10 Nov

15:15-15:45

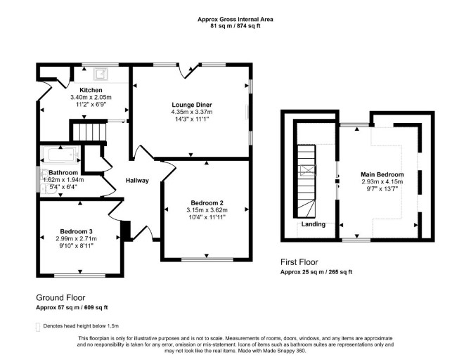
A Vacant Two Bedroom Detached Chalet Bungalow. Potential for Development (Subject to Obtaining all Relevant Consents).

The property comprises a two bedroom detached chalet bungalow arranged over ground and first floors. The property requires a program of refurbishment.

Tenure

Freehold

By Order of the Executors

Location

The property is situated on a residential road close to local shops and amenities. The open spaces of Grange Park are within easy reach. Transport links are provided by Coulsdon South rail station.

Accommodation

Ground Floor Two Reception Rooms Kitchen Bedroom Bathroom First Floor Bedroom

Exterior

The property benefits from both front and rear gardens a detached garage and off street parking.

Energy Efficiency Rating (EPC)

Current Rating F

Services

Interested parties are requested to make their own enquiries to the relevant authorities as to the availability of services.

Important Notice to Prospective Buyers:

We draw your attention to the Special Conditions of Sale within the Legal Pack, referring to other charges in addition to the purchase price which may become payable. Such costs may include Search Fees, reimbursement of Sellers costs and Legal Fees, and Transfer Fees amongst others.

Additional Fees

Administration Charge - Purchasers will be required to pay an administration fee of £1,800 inc VAT

Disbursements - Please see the legal pack for any disbursements listed that may become payable by the purchaser on completion.

View Larger Map

Disclaimer: The map preview provided above is for general guidance only and may not accurately reflect the exact location or surrounding buildings. Prospective buyers and interested parties are strongly advised to independently verify the precise location and surroundings before bidding.