Withdrawn | Lot 35A

22 Jasper Road, Crystal Palace, London, SE19 1SJ

Withdrawn

  • Semi-Detached House
  • 3 Bedrooms
  • Tenure: Freehold

Call the team on 020 7625 9007 for more information

Auction Date

Wed 12/11/2025

Auction Time

09:30

Auction Venue

Live Stream

Viewing Times:

Thu 30 Oct

12:00-12:30

Mon 3 Nov

12:00-12:30

Wed 5 Nov

12:00-12:30

Fri 7 Nov

12:00-12:30

Sat 8 Nov

12:45-13:15

Tue 11 Nov

12:00-12:30

A Vacant Three Bedroom Semi Detached House in Shell Condition

The property comprises a three bedroom semi detached house in shell condition. The property requires a full program of refurbishment.

Tenure

Freehold

Location

The property is situated on a residential road close to local shops and amenities. The open spaces of Crystal Palace Park are within easy reach. Transport links are provided by Sydenham overground station and Sydenham Hill rail station.

Accommodation

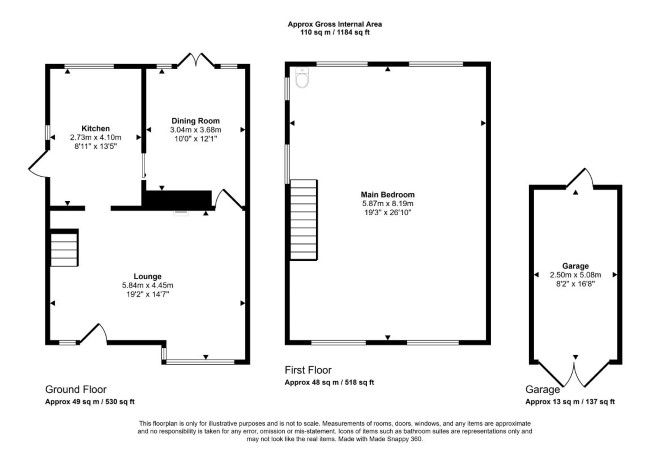
Ground Floor Two Reception Rooms Kitchen First Floor Three Bedrooms Bathroom Separate WC

Exterior

The property benefits from integral garage, off street parking and both front and rear gardens.

Energy Efficiency Rating (EPC)

Current Rating D

Services

Interested parties are requested to make their own enquiries to the relevant authorities as to the availability of services.

Important Notice to Prospective Buyers:

We draw your attention to the Special Conditions of Sale within the Legal Pack, referring to other charges in addition to the purchase price which may become payable. Such costs may include Search Fees, reimbursement of Sellers costs and Legal Fees, and Transfer Fees amongst others.

Additional Fees

Administration Charge - Purchasers will be required to pay an administration fee of £1,500 inc VAT

Disbursements - Please see the legal pack for any disbursements listed that may become payable by the purchaser on completion.

View Larger Map

Disclaimer: The map preview provided above is for general guidance only and may not accurately reflect the exact location or surrounding buildings. Prospective buyers and interested parties are strongly advised to independently verify the precise location and surroundings before bidding.