For Sale By Auction | 09:30, 12 November 2025 | Lot 72A

162 Common Road, Newton-le-Willows, Merseyside, WA12 9JA

*Guide | £50,000+ (plus fees)

  • Terraced House
  • 2 Bedrooms
  • Tenure: Freehold

Call the team on 020 7625 9007 for more information

Auction Date

Wed 12/11/2025

Auction Time

09:30

Auction Venue

Live Stream

Viewing Times:

Wed 5 Nov

12:00-12:30

Sat 8 Nov

10:00-10:30

Tue 11 Nov

12:00-12:30

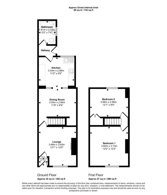
A Vacant Two Bedroom Mid Terrace House

The property comprises a two bedroom mid terrace house arranged over ground and first floors.

Tenure

Freehold

Location

The property is situated on a residential road close to local shops and amenities. The open spaces of King George V Playing Fields are within easy reach. Transport links are provided by Earlestown rail station.

Accommodation

Ground Floor Two Reception Rooms Kitchen First Floor Two bedrooms Bathroom

Exterior

The property benefits from a rear yard.

Energy Efficiency Rating (EPC)

Current Rating G

Services

Interested parties are requested to make their own enquiries to the relevant authorities as to the availability of services.

Important Notice to Prospective Buyers:

We draw your attention to the Special Conditions of Sale within the Legal Pack, referring to other charges in addition to the purchase price which may become payable. Such costs may include Search Fees, reimbursement of Sellers costs and Legal Fees, and Transfer Fees amongst others.

Additional Fees

Administration Charge - Purchasers will be required to pay an administration fee of £1,500 inc VAT

Disbursements - Please see the legal pack for any disbursements listed that may become payable by the purchaser on completion.