For Sale By Auction | 10:00, 13 November 2025 | Lot 195A

The Cottage, Quay Hill, Penryn, Cornwall, TR10 8JE

*Guide | £275,000+ (plus fees)

  • Cottage
  • 4 Bedrooms
  • Tenure: Freehold

Call the team on 020 7625 9007 for more information

Auction Date

Thu 13/11/2025

Auction Time

10:00

Auction Venue

Live Stream

Viewing Times:

Sat 1 Nov

14:00-14:30

Wed 5 Nov

14:00-14:30

Sat 8 Nov

14:00-14:30

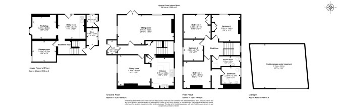
A Vacant Four Bedroom Detached Cottage

The property comprises a four bedroom detached cottage arranged over lower ground, ground and first floors.

Tenure

Freehold

Location

The property is situated on a residential road close to local shops and amenities. The open spaces of Muddy Beach are within easy reach. Transport links are provided by Penryn rail station.

Accommodation

Lower Ground Floor Workshop Store Room Utility Room Ground Floor Two Reception Rooms (One with Open-Plan Kitchen) First Floor Four Bedrooms (One with En-Suite) Bathroom

Exterior

The property benefits from a garage, a rear yard and off street parking.

Energy Efficiency Rating (EPC)

Current Rating E

Services

Interested parties are requested to make their own enquiries to the relevant authorities as to the availability of services.

Important Notice to Prospective Buyers:

We draw your attention to the Special Conditions of Sale within the Legal Pack, referring to other charges in addition to the purchase price which may become payable. Such costs may include Search Fees, reimbursement of Sellers costs and Legal Fees, and Transfer Fees amongst others.

Additional Fees

Administration Charge - Purchasers will be required to pay an administration fee of £1,500 inc VAT

Disbursements - Please see the legal pack for any disbursements listed that may become payable by the purchaser on completion.