For Sale By Auction | 09:30, 10 December 2025 | Lot 136

54 Sark Tower, Erebus Drive, Greenwich, London, SE28 0GG

Sold £226,000

  • Flat
  • 2 Bedrooms
  • Tenure: Leasehold. The property is held on a 999 year lease from 28th September 2022 (thus approximately 996 years unexpired).

Call the team on 020 7625 9007 for more information

Auction Date

Wed 10/12/2025

Auction Time

09:30

Auction Venue

Live Stream

Viewing Times:

Thu 27 Nov

13:00-13:30

Mon 1 Dec

13:00-13:30

Wed 3 Dec

13:00-13:30

Fri 5 Dec

13:00-13:30

Sat 6 Dec

14:00-14:30

Tue 9 Dec

13:00-13:30

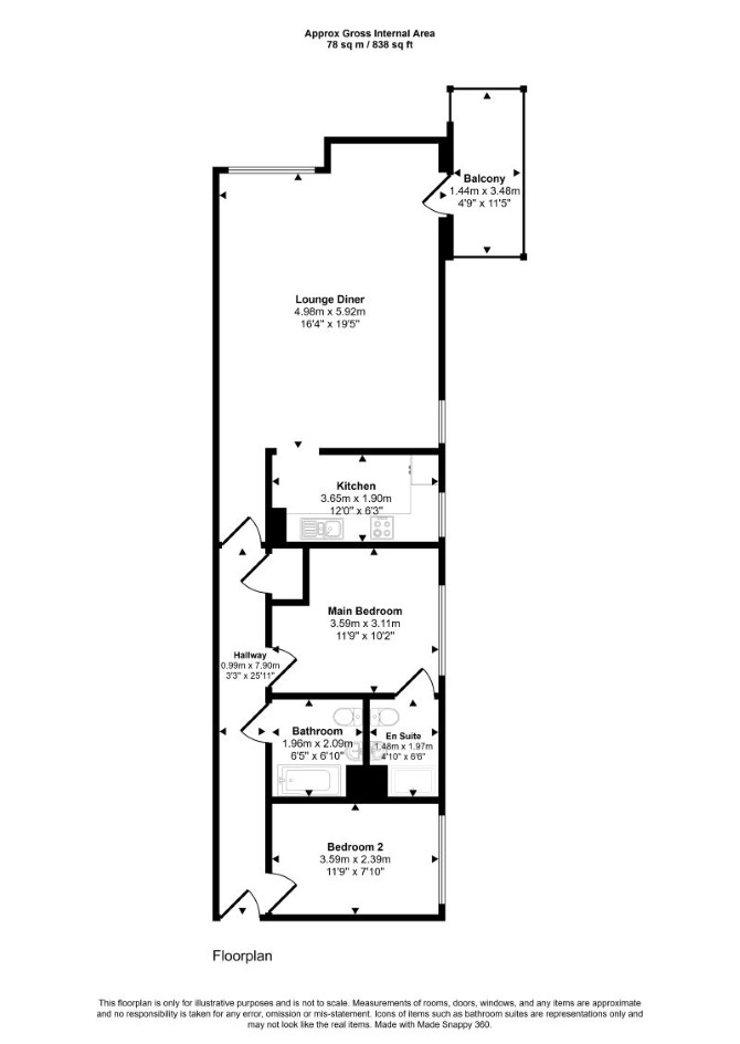
An Eighth Floor Two Bedroom Flat

The property comprises an eighth floor two bedroom flat situated within a purpose built building arranged over ground and fifteen upper floors. The property requires a program of refurbishment.

Tenure

Leasehold. The property is held on a 999 year lease from 28th September 2022 (thus approximately 996 years unexpired).

Location

The property is situated on a residential road close to local shops and amenities. The open spaces of Gallions Reach Park are within easy reach. Transport links are provided by Woolwich underground station (Elizabeth line).

Accommodation

Eighth Floor Reception Room Kitchen Two Bedrooms (One with En-Suite) Bathroom

Exterior

The property benefits from a balcony and parking space.

Energy Efficiency Rating (EPC)

Current Rating B

Services

Interested parties are requested to make their own enquiries to the relevant authorities as to the availability of services.

Important Notice to Prospective Buyers:

We draw your attention to the Special Conditions of Sale within the Legal Pack, referring to other charges in addition to the purchase price which may become payable. Such costs may include Search Fees, reimbursement of Sellers costs and Legal Fees, and Transfer Fees amongst others.

Additional Fees

Administration Charge - Purchasers will be required to pay an administration fee of £1,500 inc VAT

Disbursements - Please see the legal pack for any disbursements listed that may become payable by the purchaser on completion.

View Larger Map

Disclaimer: The map preview provided above is for general guidance only and may not accurately reflect the exact location or surrounding buildings. Prospective buyers and interested parties are strongly advised to independently verify the precise location and surroundings before bidding.