For Sale By Auction | 09:30, 10 December 2025 | Lot 115

19D East Dulwich Grove, Southwark, London, SE22 8PW

*Guide | £175,000+ (plus fees)

  • Flat
  • 2 Bedrooms
  • Tenure: Freehold

Call the team on 020 7625 9007 for more information

Auction Date

Wed 10/12/2025

Auction Time

09:30

Auction Venue

Live Stream

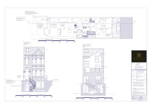
A Basement Unit Offered With Planning Permission to Extend and Convert into a Lower Ground Floor Two Bedroom Flat

The property comprises a basement unit situated within a mid terrace building arranged over lower ground, ground, and first floors.

Tenure

Freehold

Location

The property is situated on a residential road close to local shops and amenities. The open spaces of Green Dale Fields are within easy reach. Transport links are provided by Denmark Hill overground station and rail station.

Accommodation

Lower Ground Floor Basement

Exterior

The property benefits from a private rear garden.

Planning

Southwark Borough Council granted the following planning permission (ref: 23/AP/3592) on 30th May 2024 : 'Conversion of basement level into habitable accommodation including construction of single storey extension to existing basement level. The addition of a juliet balcony and an associated fire escape to the rear elevation at ground floor level. Construction of a bin and cycle storage to the front amenity space'.

Proposed Accommodation

Lower Ground Floor Open Plan Reception Room/Kitchen Two Bedrooms (one with En-suite and Walk in Wardrobe) Bathroom Utility Storage Area

Non material amendment retrospective planning for flat D is awaiting validation

Services

Interested parties are requested to make their own enquiries to the relevant authorities as to the availability of services.

Important Notice to Prospective Buyers:

We draw your attention to the Special Conditions of Sale within the Legal Pack, referring to other charges in addition to the purchase price which may become payable. Such costs may include Search Fees, reimbursement of Sellers costs and Legal Fees, and Transfer Fees amongst others.

Additional Fees

Administration Charge - Purchasers will be required to pay an administration fee of £1,500 inc VAT

Disbursements - Please see the legal pack for any disbursements listed that may become payable by the purchaser on completion.

View Larger Map

Disclaimer: The map preview provided above is for general guidance only and may not accurately reflect the exact location or surrounding buildings. Prospective buyers and interested parties are strongly advised to independently verify the precise location and surroundings before bidding.