For Sale By Auction | 09:30, 10 December 2025 | Lot 20

112 Offord Road, Islington, London, N1 1PF

*Guide | £1,300,000+ (plus fees)

  • Town House
  • 4 Bedrooms
  • Tenure: Freehold

Call the team on 020 7625 9007 for more information

Auction Date

Wed 10/12/2025

Auction Time

09:30

Auction Venue

Live Stream

Viewing Times:

Thu 27 Nov

10:45-11:15

Mon 1 Dec

10:45-11:15

Wed 3 Dec

10:45-11:15

Fri 5 Dec

10:45-11:15

Sat 6 Dec

10:00-10:30

Tue 9 Dec

10:45-11:15

A Substantial Nine Room Mid-Terrace House Currently Arranged as 2 x Two Bedroom Flats. The Property Offers Potential for Re-Development, (Subject to Obtaining all Relevant Consents) Part Let on a Periodic Tenancy Producing £19,230 Per Annum

The property is a nine room mid-terrace townhouse arranged over lower ground, ground, and two upper floors. It is currently configured as two split-level, two-bedroom flats. The property requires a program of refurbishment.

Tenure

Freehold

8 Week Completion Available Upon Request

Location

The property is situated on a residential road close to local shops and amenities. The open spaces of Caledonian Park are within easy reach. Transport links are provided by Highbury & Islington underground station (Victoria line).

Accommodation

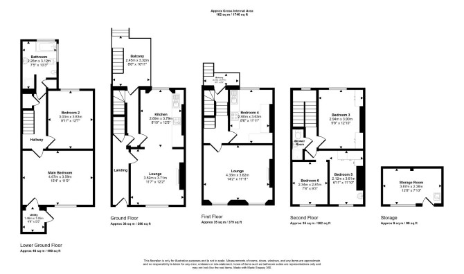
Flat 1 Lower Ground Floor Two Bedrooms Bathroom Utility Ground Floor Reception Room Kitchen Flat 2 First Floor Reception Room Kitchen Second Floor Two/Three Bedrooms Shower Room GIA Approximately: 162 sq m (1,740 sq ft)

Exterior

The property benefits from a rear garden with an outbuilding as well as two balconies located on the ground and first floors.

Tenancy

Flat 1 (Ground & Lower Ground) is subject to a Periodic Tenancy at a rent of £1,610 per calendar month.

EPC Ratings

Flat 1 - E Flat 2 - F

Energy Efficiency Rating (EPC)

Current Rating Multiple

Services

Interested parties are requested to make their own enquiries to the relevant authorities as to the availability of services.

Important Notice to Prospective Buyers:

We draw your attention to the Special Conditions of Sale within the Legal Pack, referring to other charges in addition to the purchase price which may become payable. Such costs may include Search Fees, reimbursement of Sellers costs and Legal Fees, and Transfer Fees amongst others.

Additional Fees

Administration Charge - Purchasers will be required to pay an administration fee of £1,800 inc VAT

Disbursements - Please see the legal pack for any disbursements listed that may become payable by the purchaser on completion.

View Larger Map

Disclaimer: The map preview provided above is for general guidance only and may not accurately reflect the exact location or surrounding buildings. Prospective buyers and interested parties are strongly advised to independently verify the precise location and surroundings before bidding.