Withdrawn | Lot 125

8 Preston Place, 23A Preston Street, Faversham, Kent, ME13 8NZ

Withdrawn

  • Flat
  • Tenure: Leasehold. The property is held on a 125 year lease from 25th March 2021 (thus approximately 120 years unexpired).

Call the team on 020 7625 9007 for more information

Auction Date

Wed 10/12/2025

Auction Time

09:30

Auction Venue

Live Stream

Viewing Times:

Wed 3 Dec

12:00-12:30

Sat 6 Dec

12:00-12:30

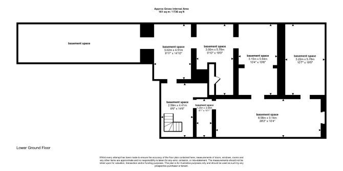
A Vacant Lower Ground Floor Basement Unit. Offered With Planning Permission to Convert into a Flat. Works have Commenced. Further Potential to Convert into Commercial Use or a Two Bedroom Flat(Subject to Obtaining all Relevant Consents)

The property comprises a lower ground floor basement unit.

Tenure

Leasehold. The property is held on a 125 year lease from 25th March 2021 (thus approximately 120 years unexpired).

Location

The property is situated on a residential road close to local shops and amenities. The open spaces of Faversham Recreation Ground are within easy reach. Transport links are provided by Faversham rail station.

Accommodation

Lower Ground Floor Basement Unit

Exterior

The property benefits from a rear courtyard.

Planning

Swale Borough Council granted the following planning permission (ref: 19/501324/FULL) on 22nd August 2019 : 'Erection of a two storey with a basement extension to provide 3No. self contained residential units. Conversion of existing basement space to provide a single self contained residential unit'. Works have commenced.

Services

Interested parties are requested to make their own enquiries to the relevant authorities as to the availability of services.

Important Notice to Prospective Buyers:

We draw your attention to the Special Conditions of Sale within the Legal Pack, referring to other charges in addition to the purchase price which may become payable. Such costs may include Search Fees, reimbursement of Sellers costs and Legal Fees, and Transfer Fees amongst others.

Additional Fees

Administration Charge - Purchasers will be required to pay an administration fee of £1,800 inc VAT

Disbursements - Please see the legal pack for any disbursements listed that may become payable by the purchaser on completion.

View Larger Map

Disclaimer: The map preview provided above is for general guidance only and may not accurately reflect the exact location or surrounding buildings. Prospective buyers and interested parties are strongly advised to independently verify the precise location and surroundings before bidding.