Withdrawn | Lot 45A

15 Pinewood Road, Tunbridge Wells, Kent, TN2 3SH

Withdrawn

  • Detached Bungalow
  • 3 Bedrooms
  • Tenure: Freehold

Call the team on 020 7625 9007 for more information

Auction Date

Wed 10/12/2025

Auction Time

09:30

Auction Venue

Live Stream

Viewing Times:

Sat 29 Nov

10:00-10:30

Mon 1 Dec

12:00-12:30

Wed 3 Dec

14:00-14:30

Sat 6 Dec

12:00-12:30

Mon 8 Dec

10:00-10:30

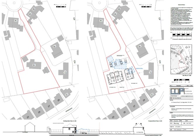
A Vacant Three Bedroom Detached Bungalow Situated on a Plot of Land Measuring Approximately 1,270 sq m (13,665 sq ft). Offered With Planning Permission to Demolish the Existing Building and Erect 3 x Four Bedroom Houses (No CIL or S106 Fees)

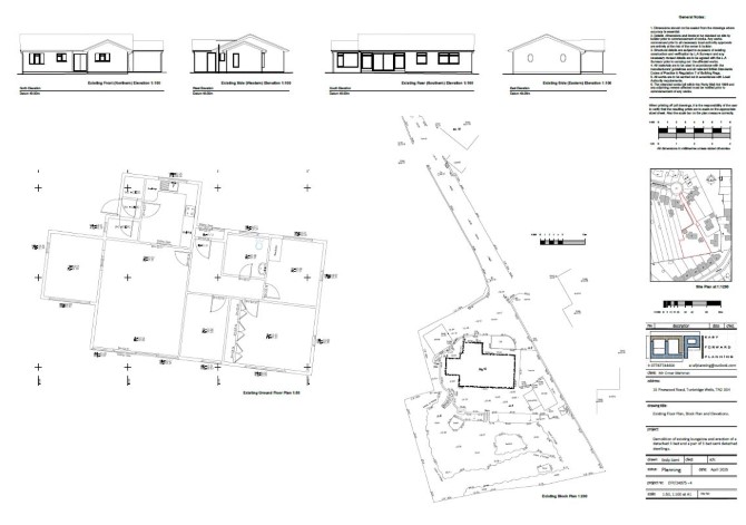
The property comprises a three bedroom detached bungalow situated on a plot of land measuring approximately 1,270 sq m (13,665 sq ft).

Tenure

Freehold

Location

The property is situated on a residential road close to local shops and amenities. The open spaces of Hilbert Woods are within easy reach. Transport links are provided by High Brooms rail station.

Accommodation

Ground Floor Through Reception Room Kitchen Three Bedrooms Bathroom Separate WC G.I.A Approximately 160 sq m

Exterior

The property benefits from off street parking and garages.

Planning

Tunbridge Wells Borough Council granted the following planning permission (ref: 25/01826/FULL) on 29th October 2025 : 'Demolition of existing dwelling & erection of 3No dwellings with associated works'.

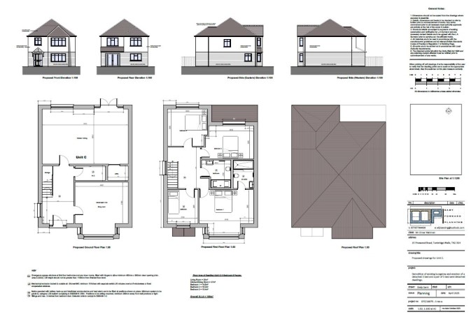
Proposed Accommodation

2 X Semi-Detached Four Bed Houses Ground Floor Reception Room Kitchen First Floor Four Bedrooms Ensuite Bathroom 1 X Detached Four Bed House Ground Floor Reception Room Kitchen First Floor Four Bedrooms Ensuite Bathroom

There are no CIL or Section 106 payments due in relation to the approved planning scheme.

Energy Efficiency Rating (EPC)

Current Rating D

Services

Interested parties are requested to make their own enquiries to the relevant authorities as to the availability of services.

Important Notice to Prospective Buyers:

We draw your attention to the Special Conditions of Sale within the Legal Pack, referring to other charges in addition to the purchase price which may become payable. Such costs may include Search Fees, reimbursement of Sellers costs and Legal Fees, and Transfer Fees amongst others.

Additional Fees

Administration Charge - Purchasers will be required to pay an administration fee of £1,800 inc VAT

Disbursements - Please see the legal pack for any disbursements listed that may become payable by the purchaser on completion.

View Larger Map

Disclaimer: The map preview provided above is for general guidance only and may not accurately reflect the exact location or surrounding buildings. Prospective buyers and interested parties are strongly advised to independently verify the precise location and surroundings before bidding.