Withdrawn | Lot 48A

201 Shackleton Court, Whitley Close, Staines-upon-Thames, Middlesex, TW19 7DF

Withdrawn

  • Flat
  • 1 Bedroom
  • Tenure: Leasehold. The property is held on a 99 year lease from 24th March 1975 (thus approximately 48 years unexpired).

Call the team on 020 7625 9007 for more information

Auction Date

Wed 10/12/2025

Auction Time

09:30

Auction Venue

Live Stream

A Vacant Second Floor Studio Flat

The property comprises a second floor studio flat situated within a purpose built block arranged over ground and two upper floors. The property requires a program of refurbishment and repairs.

Tenure

Leasehold. The property is held on a 99 year lease from 24th March 1975 (thus approximately 48 years unexpired).

Location

The property is situated on a residential road close to local shops and amenities. The open spaces of Village Park are within easy reach. Transport links are provided by Heathrow Terminal 4 underground station (Piccadilly line) and Ashford rail station.

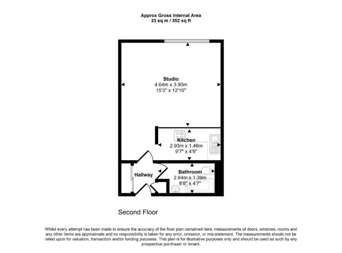
Accommodation

Second Floor Studio Room Kitchen Bathroom

Further Information

When purchasing a flat that has a short lease, it is important to understand that in addition to the purchase price, if you wish to extend the lease to 90+ years, you will need to pay a premium to the freeholder. This is done by way of serving a Section 42 notice to the freeholder requesting a lease extension with a suggested price for the extension. The freeholder has the right to refuse the offer and submit a counter notice with their suggested price. If you do not fully understand this process, please ask the auctioneers or a solicitor.

Energy Efficiency Rating (EPC)

Current Rating E

Services

Interested parties are requested to make their own enquiries to the relevant authorities as to the availability of services.

Important Notice to Prospective Buyers:

We draw your attention to the Special Conditions of Sale within the Legal Pack, referring to other charges in addition to the purchase price which may become payable. Such costs may include Search Fees, reimbursement of Sellers costs and Legal Fees, and Transfer Fees amongst others.

Additional Fees

Administration Charge - Purchasers will be required to pay an administration fee of £1,800 inc VAT

Disbursements - Please see the legal pack for any disbursements listed that may become payable by the purchaser on completion.

View Larger Map

Disclaimer: The map preview provided above is for general guidance only and may not accurately reflect the exact location or surrounding buildings. Prospective buyers and interested parties are strongly advised to independently verify the precise location and surroundings before bidding.