For Sale By Auction | 14:00, 28 January 2026 | Lot 4

3-5 Hitchin Street and Bell Cottage, Baldock, Hertfordshire, SG7 6AL

*Guide | £230,000+ (plus fees)

  • Mixed Use
  • 2 Bedrooms
  • Tenure: Freehold

Call the team on 020 7625 9007 for more information

Auction Date

Wed 28/01/2026

Auction Time

14:00

Auction Venue

Live Stream

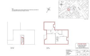
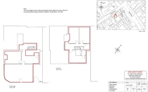
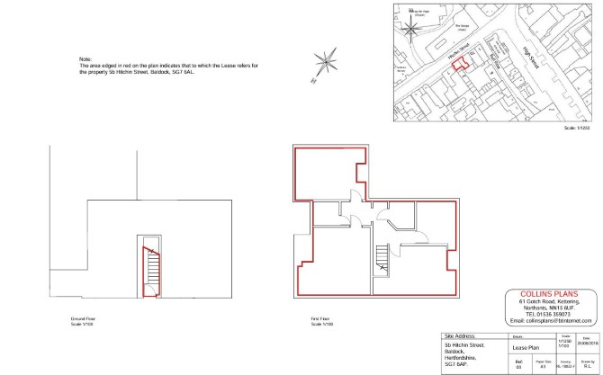
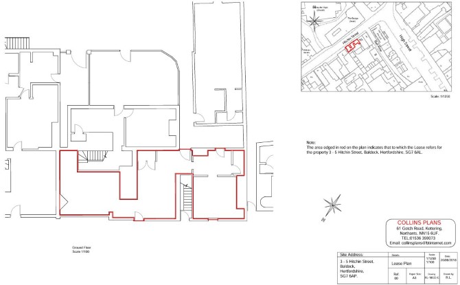
A Mixed Use Building Arranged to Provide a Ground Floor Triple Fronted Commercial Unit and a First Floor Two Bedroom Flat with a Three Bedroom Cottage to the Rear Fully Let Producing £30,384 Per Annum. Potential to Split Commercial (Subject to Obtaining all Relevant Consents)

The property comprises a mixed use building arranged to provide a ground floor triple fronted commercial unit and a first floor two bedroom flat with a three bedroom cottage to the rear.

Tenure

Freehold

Location

The property is situated on a mixed use road close to local shops and amenities. The open spaces of Avenue Park Baldock are within easy reach. Transport links are provided by Baldock rail station.

Rent Deposit Held - £3,500

VAT

VAT is applicable (TOGC available)

Energy Efficiency Rating (EPC)

Current Rating D

Services

Interested parties are requested to make their own enquiries to the relevant authorities as to the availability of services.

Important Notice to Prospective Buyers:

We draw your attention to the Special Conditions of Sale within the Legal Pack, referring to other charges in addition to the purchase price which may become payable. Such costs may include Search Fees, reimbursement of Sellers costs and Legal Fees, and Transfer Fees amongst others.

Additional Fees

Administration Charge - Purchasers will be required to pay an administration fee of £1,800 inc VAT

Disbursements - Please see the legal pack for any disbursements listed that may become payable by the purchaser on completion.

View Larger Map

Disclaimer: The map preview provided above is for general guidance only and may not accurately reflect the exact location or surrounding buildings. Prospective buyers and interested parties are strongly advised to independently verify the precise location and surroundings before bidding.