For Sale By Auction | 14:00, 28 January 2026 | Lot 9

215 Ross Road, South Norwood, London, SE25 6TN

*Guide | £280,000+ (plus fees)

  • Semi-Detached House
  • 4 Bedrooms
  • Tenure: Freehold

Call the team on 020 7625 9007 for more information

Auction Date

Wed 28/01/2026

Auction Time

14:00

Auction Venue

Live Stream

Viewing Times:

Sat 17 Jan

12:00-12:30

A Four Bedroom Semi Detached House. Potential for a Loft Conversion (Subject to Obtaining all Relevant Consents) Offered with Vacant Possession.

The property comprises a four bedroom semi detached house arranged over lower ground, ground and first floors. The property requires a program of modernisation.

Tenure

Freehold

6 Week Completion Available

Location

The property is situated on a residential road close to local shops and amenities. The open spaces of Grangewood Park are within easy reach. Transport links are provided by Selhurst rail station.

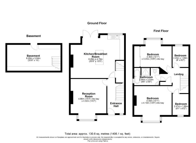
Accommodation

Lower Ground Floor Basement Ground Floor Reception Room Kitchen/Diner First Floor Four Bedrooms Bathroom

Exterior

The property benefits from a rear garden.

Energy Efficiency Rating (EPC)

Current Rating D

Services

Interested parties are requested to make their own enquiries to the relevant authorities as to the availability of services.

Important Notice to Prospective Buyers:

We draw your attention to the Special Conditions of Sale within the Legal Pack, referring to other charges in addition to the purchase price which may become payable. Such costs may include Search Fees, reimbursement of Sellers costs and Legal Fees, and Transfer Fees amongst others.

Additional Fees

Administration Charge - Purchasers will be required to pay an administration fee of £1,800 inc VAT

Disbursements - Please see the legal pack for any disbursements listed that may become payable by the purchaser on completion.

View Larger Map

Disclaimer: The map preview provided above is for general guidance only and may not accurately reflect the exact location or surrounding buildings. Prospective buyers and interested parties are strongly advised to independently verify the precise location and surroundings before bidding.