For Sale By Auction | 09:30, 11 February 2026 | Lot 30

57A Harrow Road, Leytonstone, London, E11 3PS

Sold £250,000

  • Flat
  • 2 Bedrooms
  • Tenure: Leasehold. The property is held on a 99 year lease from 1st January 2004 (thus approximately 77 years unexpired).

Call the team on 020 7625 9007 for more information

Auction Date

Wed 11/02/2026

Auction Time

09:30

Auction Venue

Live Stream

Viewing Times:

Wed 28 Jan

14:15-14:45

Fri 30 Jan

14:15-14:45

Sat 31 Jan

13:00-13:30

Tue 3 Feb

14:15-14:45

Thu 5 Feb

14:15-14:45

Mon 9 Feb

14:15-14:45

Tue 10 Feb

09:30-10:00

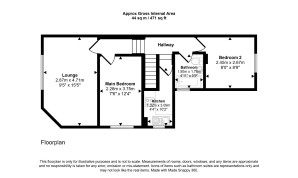
A Vacant First Floor Two Bedroom Maisonette

The property comprises a first floor two bedroom maisonette situated within an end of terrace building arranged over ground and first floors.

Tenure

Leasehold. The property is held on a 99 year lease from 1st January 2004 (thus approximately 77 years unexpired).

Location

The property is situated on a residential road close to local shops and amenities. The open spaces of Wanstead Heath are within easy reach. Transport links are provided by Leyton underground station (Central line) and Leytonstone High Road overground station.

Accommodation

First Floor Reception Room Kitchen Two Bedrooms Bathroom

Further Information

When purchasing a flat that has a short lease, it is important to understand that in addition to the purchase price, if you wish to extend the lease to 90+ years, you will need to pay a premium to the freeholder. This is done by way of serving a Section 42 notice to the freeholder requesting a lease extension with a suggested price for the extension. The freeholder has the right to refuse the offer and submit a counter notice with their suggested price. If you do not fully understand this process, please ask the auctioneers or a solicitor.

Energy Efficiency Rating (EPC)

Current Rating C

Services

Interested parties are requested to make their own enquiries to the relevant authorities as to the availability of services.

Important Notice to Prospective Buyers:

We draw your attention to the Special Conditions of Sale within the Legal Pack, referring to other charges in addition to the purchase price which may become payable. Such costs may include Search Fees, reimbursement of Sellers costs and Legal Fees, and Transfer Fees amongst others.

Additional Fees

Administration Charge - Purchasers will be required to pay an administration fee of £1,800 inc VAT

Disbursements - Please see the legal pack for any disbursements listed that may become payable by the purchaser on completion.

View Larger Map

Disclaimer: The map preview provided above is for general guidance only and may not accurately reflect the exact location or surrounding buildings. Prospective buyers and interested parties are strongly advised to independently verify the precise location and surroundings before bidding.