For Sale By Auction | 09:30, 11 February 2026 | Lot 50A

38 Redston Road, Crouch End, London, N8 7HJ

*Guide | £1,100,000+ (plus fees)

  • Semi-Detached House
  • 3 Bedrooms
  • Tenure: Freehold

Call the team on 020 7625 9007 for more information

Auction Date

Wed 11/02/2026

Auction Time

09:30

Auction Venue

Live Stream

Viewing Times:

Wed 28 Jan

09:30-10:00

Fri 30 Jan

09:00-09:30

Sat 31 Jan

09:30-10:00

Tue 3 Feb

09:00-09:30

Thu 5 Feb

09:45-10:15

Mon 9 Feb

09:45-10:15

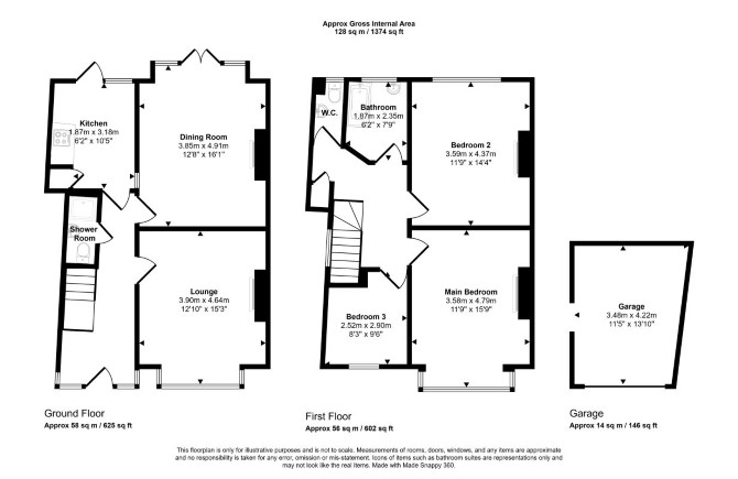
A Vacant Three Bedroom Semi Detached House. Offered With Planning Permission for a Loft and Rear Extension

The property comprises a three bedroom semi detached house arranged over ground and first floors.

Tenure

Freehold

Location

The property is situated on a residential road close to local shops and amenities. The open spaces of Alexandra Park are within easy reach. Transport links are provided by Hornsey rail station.

Accommodation

Ground Floor Two Reception Rooms Kitchen First Floor Three Bedrooms Bathroom Separate WC

Exterior

The property benefits from both front and rear gardens

Planning

Haringey Borough Council granted the following planning permissions (ref: HGY/2025/1961) on 1st September 2025 : 'Erection of single storey extension which extends beyond the rear wall of the original house by 6m, for which the maximum height would be 3m and for which the height of the eaves would be 2.82m' and (ref: HGY/2025/1960) on 24th July 2025 : 'Certificate of lawfulness for proposed use: Erection of a 50sqm side and rear wraparound dormer extension with 2no rooflights'.

Proposed Accommodation

Ground Floor Two Reception Rooms Kitchen WC First Floor Three Bedrooms Bathroom Utility Room Second Floor Bedroom (with en-suite and walk in wardrobe)

The property is held in an SPV and buyers will have the opportunity to purchase this with the benefits that this affords.

Energy Efficiency Rating (EPC)

Current Rating D

Services

Interested parties are requested to make their own enquiries to the relevant authorities as to the availability of services.

Important Notice to Prospective Buyers:

We draw your attention to the Special Conditions of Sale within the Legal Pack, referring to other charges in addition to the purchase price which may become payable. Such costs may include Search Fees, reimbursement of Sellers costs and Legal Fees, and Transfer Fees amongst others.

Additional Fees

Administration Charge - Purchasers will be required to pay an administration fee of £1,800 inc VAT

Disbursements - Please see the legal pack for any disbursements listed that may become payable by the purchaser on completion.

View Larger Map

Disclaimer: The map preview provided above is for general guidance only and may not accurately reflect the exact location or surrounding buildings. Prospective buyers and interested parties are strongly advised to independently verify the precise location and surroundings before bidding.