For Sale By Auction | 09:30, 11 February 2026 | Lot 33

17 Bickels Yard, 151-153 Bermondsey Street, Bermondsey, London, SE1 3HA

Sold £302,000

  • Office
  • Tenure: Long Leasehold. The property is held on a 999 year lease from 1st June 1999 (thus approximately 973 years unexpired).

Call the team on 020 7625 9007 for more information

Auction Date

Wed 11/02/2026

Auction Time

09:30

Auction Venue

Live Stream

Viewing Times:

Wed 28 Jan

10:45-11:15

Fri 30 Jan

10:45-11:15

Tue 3 Feb

10:45-11:15

Thu 5 Feb

10:45-11:15

Sat 7 Feb

13:15-13:45

Mon 9 Feb

10:45-11:15

Tue 10 Feb

09:00-09:30

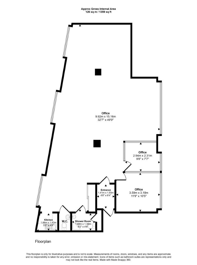
A Vacant Second Floor Self-Contained Office

The property comprises a second floor self-contained office situated within a purpose built development arranged over ground and four upper floors. The building benefits from a lift.

Tenure

Long Leasehold. The property is held on a 999 year lease from 1st June 1999 (thus approximately 973 years unexpired).

By Order of the LPA Receivers

Location

The property is situated in Bickels Yard, which is a commercial and residential development directly off Bermondsey Street. The open spaces of Tanner Street Park are within easy reach. Transport links are provided by London Bridge underground station (Jubilee and Northern line) and Cannon Street rail station.

Accommodation

Second Floor Office Two Meeting Rooms Kitchen Bathroom Separate WC G.I.A Approximately 126 sq m (1,359 sq ft)

Exterior

The building benefits from a private courtyard.

The property is elected for VAT. This property is being marketed for sale on behalf of Joint LPA Receivers and therefore no warranties, representations or guarantees are given or will be given in respect of the information in this brochure or any matter relating to the property, including VAT. Any information provided is provided without liability for any reliance placed on it and the Receivers are acting without personal liability.

Energy Efficiency Rating (EPC)

Current Rating D

Services

Interested parties are requested to make their own enquiries to the relevant authorities as to the availability of services.

Important Notice to Prospective Buyers:

We draw your attention to the Special Conditions of Sale within the Legal Pack, referring to other charges in addition to the purchase price which may become payable. Such costs may include Search Fees, reimbursement of Sellers costs and Legal Fees, and Transfer Fees amongst others.

Additional Fees

Administration Charge - Purchasers will be required to pay an administration fee of £1,800 inc VAT

Disbursements - Please see the legal pack for any disbursements listed that may become payable by the purchaser on completion.

View Larger Map

Disclaimer: The map preview provided above is for general guidance only and may not accurately reflect the exact location or surrounding buildings. Prospective buyers and interested parties are strongly advised to independently verify the precise location and surroundings before bidding.