Postponed | Lot 84

25 Julien Court Road, Braintree, Essex, CM7 9BN

Postponed

  • Detached House
  • 6 Bedrooms
  • Tenure: Freehold

Call the team on 020 7625 9007 for more information

Auction Date

Wed 11/02/2026

Auction Time

09:30

Auction Venue

Live Stream

Viewing Times:

Wed 4 Feb

14:00-14:30

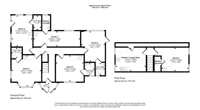
A Six Room Detached HMO Fully Let Producing £57,240 Per Annum (Reflecting a 14.31% Yield On Guide)

The property comprises a six room detached HMO arranged over ground and first floors.

Tenure

Freehold

Location

The property is situated on a residential road close to local shops and amenities. The open spaces of Braintree Recreation Ground are within easy reach. Transport links are provided by Braintree rail station.

Accommodation

Ground Floor Five Letting Rooms (All with En-Suites) First Floor Communal Kitchen Letting Room with En-Suite

Exterior

The property benefits from both front and rear gardens.

Tenancy

The property is subject to individual tenancies at a combined rent of £4,770 per calendar month.

Energy Efficiency Rating (EPC)

Current Rating D

Services

Interested parties are requested to make their own enquiries to the relevant authorities as to the availability of services.

Important Notice to Prospective Buyers:

We draw your attention to the Special Conditions of Sale within the Legal Pack, referring to other charges in addition to the purchase price which may become payable. Such costs may include Search Fees, reimbursement of Sellers costs and Legal Fees, and Transfer Fees amongst others.

Additional Fees

Administration Charge - Purchasers will be required to pay an administration fee of £1,800 inc VAT

Disbursements - Please see the legal pack for any disbursements listed that may become payable by the purchaser on completion.

View Larger Map

Disclaimer: The map preview provided above is for general guidance only and may not accurately reflect the exact location or surrounding buildings. Prospective buyers and interested parties are strongly advised to independently verify the precise location and surroundings before bidding.