For Sale By Auction | 09:30, 11 February 2026 | Lot 26

17 Princes Road, Dartford, Kent, DA1 3HJ

Sold £319,000

  • Terraced House
  • 3 Bedrooms
  • Tenure: Freehold

Call the team on 020 7625 9007 for more information

Auction Date

Wed 11/02/2026

Auction Time

09:30

Auction Venue

Live Stream

Viewing Times:

Thu 29 Jan

13:45-14:15

Sat 31 Jan

12:15-12:45

Mon 2 Feb

13:45-14:15

Wed 4 Feb

13:45-14:15

Fri 6 Feb

13:45-14:15

Tue 10 Feb

13:45-14:15

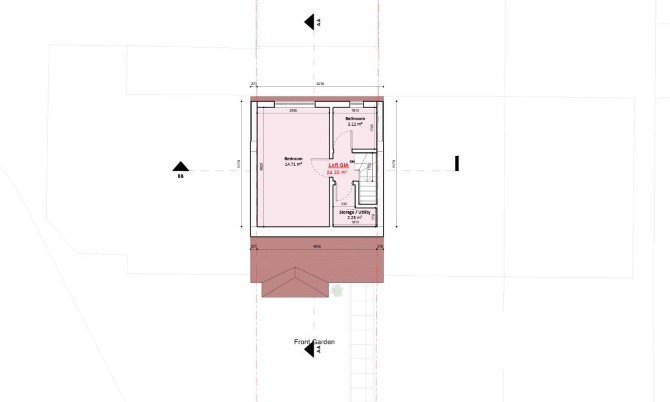
A Vacant Three Bedroom Mid Terrace House. Offered With Planning Permissions for a 6m Rear Extension, a Loft Extension and a Further Planning Application has been Submitted for a Two Storey Rear Extension

The property comprises a three bedroom mid terrace house arranged over ground and first floors.

Tenure

Freehold

8 Week Completion Available

Location

The property is situated on a residential road close to local shops and amenities. The open spaces of Wilmot Park are within easy reach. Transport links are provided by Crayford rail station.

Accommodation

Ground Floor Two Reception Rooms Kitchen WC Conservatory First Floor Three Bedrooms Bathroom

Exterior

The property benefits from off street parking and a rear garden.

Planning

Dartford Borough Council granted the follow ing planning permission (ref: 25/01194/LDC) on 12th December 2025 : 'Application for a Lawful Development Certificate for proposed loft conversion with rear dormer'. The following planning application has been submitted to Dartford Council (ref: PP-14671991) on 2nd February 2026 as a joint application with the neighbouring property for the erection of a two storey rear extension. A decision for this application is pending. Auction House London make no representations or warranties with regard to this scheme and/or the validity of the aforementioned application. Buyers must rely on their own enquiries with regard to any development potential, permissions required and previous planning history in respect of this site.

Energy Efficiency Rating (EPC)

Current Rating E

Services

Interested parties are requested to make their own enquiries to the relevant authorities as to the availability of services.

Important Notice to Prospective Buyers:

We draw your attention to the Special Conditions of Sale within the Legal Pack, referring to other charges in addition to the purchase price which may become payable. Such costs may include Search Fees, reimbursement of Sellers costs and Legal Fees, and Transfer Fees amongst others.

Additional Fees

Administration Charge - Purchasers will be required to pay an administration fee of £1,800 inc VAT

Disbursements - Please see the legal pack for any disbursements listed that may become payable by the purchaser on completion.

View Larger Map

Disclaimer: The map preview provided above is for general guidance only and may not accurately reflect the exact location or surrounding buildings. Prospective buyers and interested parties are strongly advised to independently verify the precise location and surroundings before bidding.