For Sale By Auction | 09:30, 18 March 2026 | Lot 54

1 Sperling Road, Tottenham, London, N17 6UQ

Sold £565,000

  • Block of Apartments
  • 4 Bedrooms
  • Tenure: Freehold

Call the team on 020 7625 9007 for more information

Auction Date

Wed 18/03/2026

Auction Time

09:30

Auction Venue

Live Stream

Viewing Times:

Wed 4 Mar

11:00-11:30

Fri 6 Mar

11:00-11:30

Tue 10 Mar

11:00-11:30

Thu 12 Mar

11:00-11:30

Sat 14 Mar

12:00-12:30

Mon 16 Mar

11:00-11:30

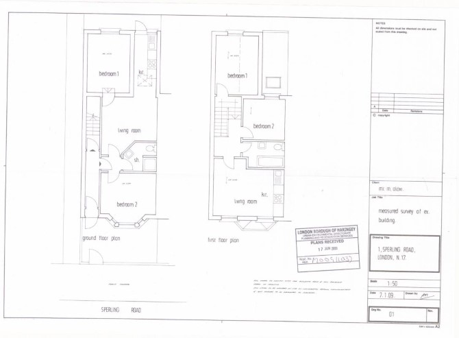
A Vacant End of Terrace House Arranged to Provide Two Flats (2 x Two Bedroom)

The property comprises an end of terrace building arranged to provide two flats (2 x two bedroom).

Tenure

Freehold

Location

The property is situated on a residential road close to local shops and amenities. The open spaces of Down Lane Park are within easy reach. Transport links are provided by Tottenham Hale underground station (Victoria line) and rail station.

Accommodation

Ground Floor Reception Room with Open-Plan Kitchen Two Bedrooms Bathroom First Floor Reception Room with Open-Plan Kitchen Two Bedrooms Bathroom

Energy Efficiency Rating (EPC)

Current Rating D

Services

Interested parties are requested to make their own enquiries to the relevant authorities as to the availability of services.

Important Notice to Prospective Buyers:

We draw your attention to the Special Conditions of Sale within the Legal Pack, referring to other charges in addition to the purchase price which may become payable. Such costs may include Search Fees, reimbursement of Sellers costs and Legal Fees, and Transfer Fees amongst others.

Additional Fees

Administration Charge - Purchasers will be required to pay an administration fee of £1,800 inc VAT

Disbursements - Please see the legal pack for any disbursements listed that may become payable by the purchaser on completion.

View Larger Map

Disclaimer: The map preview provided above is for general guidance only and may not accurately reflect the exact location or surrounding buildings. Prospective buyers and interested parties are strongly advised to independently verify the precise location and surroundings before bidding.