For Sale By Auction | 09:30, 18 March 2026 | Lot 25A

Flat 27 Thurlby Croft, Mulberry Close, Hendon, London, NW4 1QP

*Guide | £350,000+ (plus fees)

  • Flat
  • 3 Bedrooms
  • Tenure: Share of Freehold. The property is held on a 150 year lease from 25th March 1972 (thus approximately 96 years unexpired). The garage is held on a separate 99 year lease from 25th March 1972 (thus approximately 45 years unexpired).

Call the team on 020 7625 9007 for more information

Auction Date

Wed 18/03/2026

Auction Time

09:30

Auction Venue

Live Stream

Viewing Times:

Thu 5 Mar

11:00-11:30

Mon 9 Mar

11:00-11:30

Wed 11 Mar

11:00-11:30

Fri 13 Mar

11:00-11:30

Tue 17 Mar

11:00-11:30

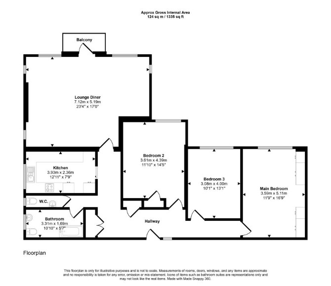
A Vacant Third Floor Three Bedroom Flat and a Garage

The property comprises a third floor three bedroom flat situated within a purpose built block arranged over ground and four upper floors. The garage is separately located within a purpose-built garage block

Tenure

Share of Freehold. The property is held on a 150 year lease from 25th March 1972 (thus approximately 96 years unexpired). The garage is held on a separate 99 year lease from 25th March 1972 (thus approximately 45 years unexpired).

By Order of the Executors

Location

The property is situated on a residential road close to local shops and amenities. The open spaces of Sunny Hill Park are within easy reach. Transport links are provided by Hendon Central underground station (Northern line) and Hendon rail station.

Accommodation

Third Floor Reception Room Kitchen Three Bedrooms Bathroom WC

Exterior

The property benefits from a private balcony and garage as well as attractive communal gardens.

Energy Efficiency Rating (EPC)

Current Rating C

Services

Interested parties are requested to make their own enquiries to the relevant authorities as to the availability of services.

Important Notice to Prospective Buyers:

We draw your attention to the Special Conditions of Sale within the Legal Pack, referring to other charges in addition to the purchase price which may become payable. Such costs may include Search Fees, reimbursement of Sellers costs and Legal Fees, and Transfer Fees amongst others.

Additional Fees

Administration Charge - Purchasers will be required to pay an administration fee of £1,800 inc VAT

Disbursements - Please see the legal pack for any disbursements listed that may become payable by the purchaser on completion.

View Larger Map

Disclaimer: The map preview provided above is for general guidance only and may not accurately reflect the exact location or surrounding buildings. Prospective buyers and interested parties are strongly advised to independently verify the precise location and surroundings before bidding.