For Sale By Auction | 14:00, 04 March 2026 | Lot 42

Land at 15A Lea Bushes, Watford, Hertfordshire, WD25 9TL

*Guide | £145,000+ (plus fees)

  • Land
  • Tenure: Freehold

Call the team on 020 7625 9007 for more information

Auction Date

Wed 04/03/2026

Auction Time

14:00

Auction Venue

Unknown

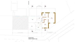
A Plot of Land Measuring Approximately 279 sq m (3,006 sq ft). Offered With Planning Permission for the Demolition of Existing Side Extension and the Erection of a Two Bedroom House

The lot comprises a plot of land measuring approximately 279 sq m (3,006 sq ft).

Tenure

Freehold

Planning

Watford Borough Council granted the following planning permission (ref: 23/00629/FUL) on 9th October 2023 : 'Erection of 1 x 2-bed dwelling, cycle storage, amenity space, and refuse space following demolition of side extension and single storey rear infill extension for the host property'.

Proposed Accommodation

Ground Floor Reception Room Kitchen WC First Floor Two Bedrooms Bathroom

Proposed Accommodation Exterior

The property will benefit from a rear garden.

The site area depicted within the plan in the auction particulars is for indicative purposes only. Additionally, any measurements stated may not be exact. Some or all of the plot may comprise adopted highway land and if the site has trees, there may be Tree Preservation Orders in place. Buyers should rely on their own enquiries with regard to precise measurements, any consents or rights over the land and any possible development potential or alternative uses for this site.

Services

Interested parties are requested to make their own enquiries to the relevant authorities as to the availability of services.

Important Notice to Prospective Buyers:

We draw your attention to the Special Conditions of Sale within the Legal Pack, referring to other charges in addition to the purchase price which may become payable. Such costs may include Search Fees, reimbursement of Sellers costs and Legal Fees, and Transfer Fees amongst others.

Additional Fees

Administration Charge - Purchasers will be required to pay an administration fee of £1,800 inc VAT

Disbursements - Please see the legal pack for any disbursements listed that may become payable by the purchaser on completion.

View Larger Map

Disclaimer: The map preview provided above is for general guidance only and may not accurately reflect the exact location or surrounding buildings. Prospective buyers and interested parties are strongly advised to independently verify the precise location and surroundings before bidding.