For Sale By Auction | 09:30, 18 March 2026 | Lot 8

101-107 High Street, Sittingbourne, Kent, ME10 4AJ

*Guide | £295,000+ (plus fees)

  • Block of Apartments

Call the team on 020 7625 9007 for more information

Auction Date

Wed 18/03/2026

Auction Time

09:30

Auction Venue

Live Stream

Viewing Times:

Sat 7 Mar

12:00-12:30

Tue 10 Mar

12:00-12:30

Thu 12 Mar

12:00-12:30

Sat 14 Mar

12:00-12:30

Mon 16 Mar

12:00-12:30

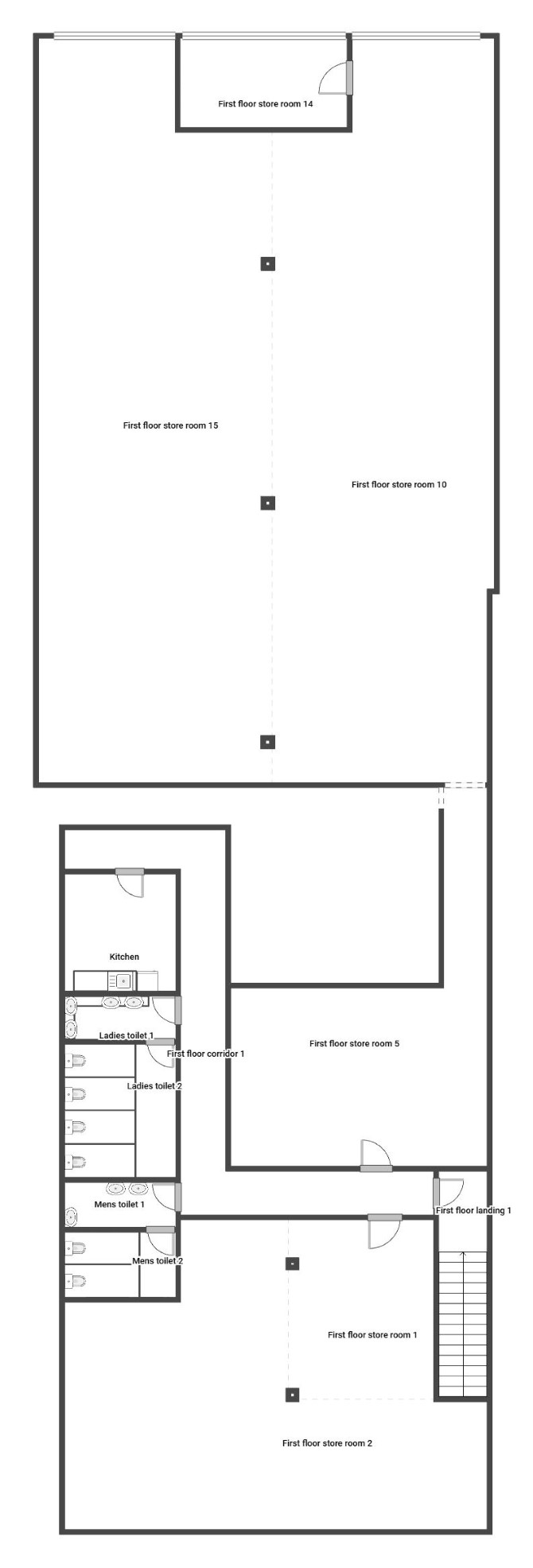
A Double Fronted Mid Terrace Building Arranged to Provide Two Ground Floor Retail Units (Sold Off on Long Leases) and Part Ground Floor and First Floor Ancillary Space. Offered With Planning Permission for Conversion to Eight Flats (6 x One Bedroom, 1 x Two Bedroom and 1x Three Bedroom) and Further Planning Permission for a Single Storey Extension to Create an Additional Two Flats (1 x One Bedroom and 1 x Two Bedroom).

The property comprises a double fronted mid terrace building arranged to provide two ground floor retail units (accessed separately and sold off on long leases), with part ground floor and first floor ancillary space.

6 Week Completion Available

Location

The property is situated on a mixed use road close to local shops and amenities. The open spaces of Sittingbourne Recreation Ground are within easy reach. Transport links are provided by Sittingbourne rail station and the A249 leading to the M2.

Planning

Swale Borough Council granted the following planning permissions: (ref: 25/503935/PNMA) on 15th December 2025 : 'Prior notification for the change of use from Commercial, Business and Service (Use Class E) to 8no. residential flats (Use Class C3)'. (ref: 25/504125/FULL) on 24th February 2026 : 'Erection of upwards single storey extension, to a retail unit to provide two new residential units (1x one bed and 1x 2- bed) with dormers to front and rear. The proposals are consistent with recent applications to alter the building and to change the use of the upper floors (and part of the ground floor) from ancillary retail to residential use'.

The seller has advised there is no CIL or S106 applicable to this development.

Services

Interested parties are requested to make their own enquiries to the relevant authorities as to the availability of services.

Important Notice to Prospective Buyers:

We draw your attention to the Special Conditions of Sale within the Legal Pack, referring to other charges in addition to the purchase price which may become payable. Such costs may include Search Fees, reimbursement of Sellers costs and Legal Fees, and Transfer Fees amongst others.

Additional Fees

Administration Charge - Purchasers will be required to pay an administration fee of £1,800 inc VAT

Disbursements - Please see the legal pack for any disbursements listed that may become payable by the purchaser on completion.

View Larger Map

Disclaimer: The map preview provided above is for general guidance only and may not accurately reflect the exact location or surrounding buildings. Prospective buyers and interested parties are strongly advised to independently verify the precise location and surroundings before bidding.