For Sale By Auction | 09:30, 18 March 2026 | Lot 52A

65-67 Park Road, Gloucester, Gloucestershire, GL1 1LS

*Guide | £1,100,000+ (plus fees)

  • Block of Apartments
  • 24 Bedrooms
  • Tenure: Freehold

Call the team on 020 7625 9007 for more information

Auction Date

Wed 18/03/2026

Auction Time

09:30

Auction Venue

Live Stream

Viewing Times:

Tue 10 Mar

12:00-12:30

Thu 12 Mar

12:00-12:30

Sat 14 Mar

10:00-10:30

Tue 17 Mar

12:00-12:30

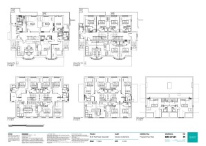
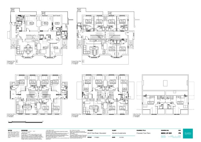
A Vacant Pair of Semi Detached Buildings Arranged to Provide a Twenty Two Room HMO and Two Self-Contained Studio Flats

The property comprises a pair of semi detached buildings arranged to provide a twenty two room HMO and two self-contained studio flats over lower ground, ground and three upper floors.

Tenure

Freehold

Location

The property is situated on a residential road close to local shops and amenities. The open spaces of Gloucester Park are within easy reach. Transport links are provided by Gloucester rail station.

Accommodation

Lower Ground Floor Two Communal Rooms Four Letting Rooms Three Shared Bathrooms Ground Floor Communal Kitchen/Diner Six Letting Rooms (All with En-Suites) Bathroom First Floor Communal Kitchen/Diner Six Letting Rooms (All with En-Suites) Second Floor Communal Kitchen/Diner Six Letting Rooms (All with En-Suites) Third Floor Two Self-Contained Studio Flats

Services

Interested parties are requested to make their own enquiries to the relevant authorities as to the availability of services.

Important Notice to Prospective Buyers:

We draw your attention to the Special Conditions of Sale within the Legal Pack, referring to other charges in addition to the purchase price which may become payable. Such costs may include Search Fees, reimbursement of Sellers costs and Legal Fees, and Transfer Fees amongst others.

Additional Fees

Administration Charge - Purchasers will be required to pay an administration fee of £1,800 inc VAT

Disbursements - Please see the legal pack for any disbursements listed that may become payable by the purchaser on completion.

View Larger Map

Disclaimer: The map preview provided above is for general guidance only and may not accurately reflect the exact location or surrounding buildings. Prospective buyers and interested parties are strongly advised to independently verify the precise location and surroundings before bidding.