Withdrawn | Lot 13

12 Upland Close, Billericay, Essex, CM12 0JR

Withdrawn

  • Semi-Detached House
  • 4 Bedrooms
  • Tenure: Freehold

Call the team on 020 7625 9007 for more information

Auction Date

Wed 22/04/2026

Auction Time

09:30

Auction Venue

Live Stream

Viewing Times:

Tue 14 Apr

12:00-12:30

Thu 16 Apr

13:00-13:30

Sat 18 Apr

10:00-10:30

Tue 21 Apr

12:00-12:30

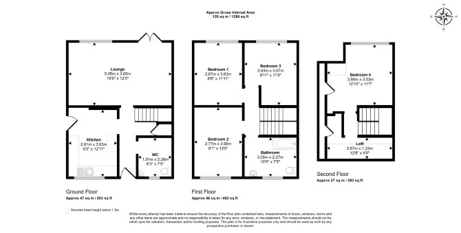
A Vacant Four Bedroom Semi Detached House. Offered with Planning Permission for a Roof and Rear Extension.

The property comprises a four bedroom semi detached house arranged over ground and first floors. The property requires a program of refurbishment and repairs.

Tenure

Freehold

Location

The property is situated on a residential road close to local shops and amenities. The open spaces of Lake Meadows Park and Playground are within easy reach. Transport links are provided by Billericay rail station.

Accommodation

Ground Floor Reception Room Kitchen Bathroom WC/Utility Room First Floor Three Bedrooms Bathroom Second Floor Bedroom Store Room

Exterior

The property benefits from a rear garden and off street parking.

Planning

Basildon Borough Council granted the following planning permissions on 16th February 2023: ref: 23/00139/LDCP: 'To establish the lawfulness of a proposed hip to gable roof extension and an extension to the existing rear dormer'. ref: 23/00146/PDPA: 'Notification for a proposed larger home extension projecting 6.00 metres from the rear wall of the original dwelling with a maximum height of 3.73 metres and an eaves height of 2.98 metres, materials to match existing dwelling'.

Energy Efficiency Rating (EPC)

Current Rating D

Services

Interested parties are requested to make their own enquiries to the relevant authorities as to the availability of services.

Important Notice to Prospective Buyers:

We draw your attention to the Special Conditions of Sale within the Legal Pack, referring to other charges in addition to the purchase price which may become payable. Such costs may include Search Fees, reimbursement of Sellers costs and Legal Fees, and Transfer Fees amongst others.

Additional Fees

Administration Charge - Purchasers will be required to pay an administration fee of £1,800 inc VAT

Disbursements - Please see the legal pack for any disbursements listed that may become payable by the purchaser on completion.

View Larger Map

Disclaimer: The map preview provided above is for general guidance only and may not accurately reflect the exact location or surrounding buildings. Prospective buyers and interested parties are strongly advised to independently verify the precise location and surroundings before bidding.