For Sale By Auction | 09:30, 22 April 2026 | Lot 115A

The Bell, 41 Frogmoor, High Wycombe, Buckinghamshire, HP13 5DQ

*Guide | £425,000+ (plus fees)

  • Pub
  • 6 Bedrooms
  • Tenure: Freehold

Call the team on 020 7625 9007 for more information

Auction Date

Wed 22/04/2026

Auction Time

09:30

Auction Venue

Live Stream

Viewing Times:

Mon 13 Apr

12:00-12:30

Wed 15 Apr

12:00-12:30

Sat 18 Apr

12:00-12:30

Mon 20 Apr

12:00-12:30

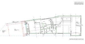
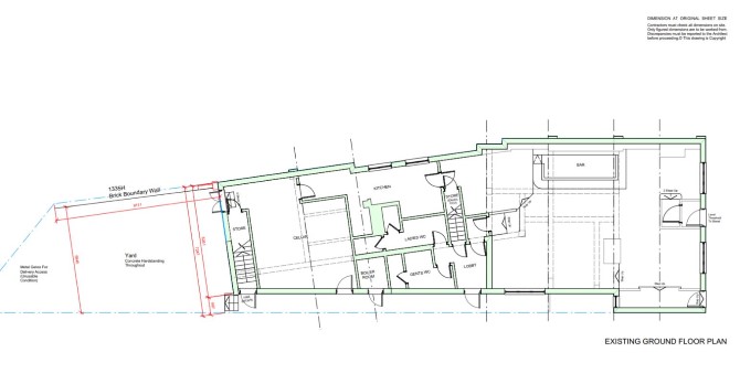
A Vacant End of Terrace Grade II Commercial Building Arranged to Provide a Ground Floor Former Public House with Six Bedrooms on the First Floor. Potential for Re-Development (Subject to Obtaining all Relevant Consents)

The property comprises a substantial end of terrace Grade II Listed former public house arranged over two floors. The first floor is separately accessed and has six bedrooms.

Tenure

Freehold

Location

The property occupies a prominent position, offering good visibility and accessibility. It is located close to a range of local shops and amenities. The nearby Chilterns Shopping Centre has planning permission for redevelopment to deliver over 300 residential units, alongside retained retail space. Buckinghamshire New University is also within close proximity. Strong transport connections are available via High Wycombe railway station.

Accommodation

Ground Floor Main Bar/Restaurant Area Kitchen Beer Store Male & Female WC's Rear access to yard Approx. 1,607 sq ft / 149.31 sq m First Floor Side separate access to: Six Bedrooms Five En-suites (part finished) Kitchenette Approx. 796 sq ft / 73.98 sq m GIA 2,403 sq ft / 223.26 sq m

Exterior

Rear parking/garden area that has a temporary structure which can be easily removed.

The property is subject to VAT.

EPC Ratings

Commercial - B Rating Accommodation - E Rating

Energy Efficiency Rating (EPC)

Current Rating Multiple

Services

Interested parties are requested to make their own enquiries to the relevant authorities as to the availability of services.

Important Notice to Prospective Buyers:

We draw your attention to the Special Conditions of Sale within the Legal Pack, referring to other charges in addition to the purchase price which may become payable. Such costs may include Search Fees, reimbursement of Sellers costs and Legal Fees, and Transfer Fees amongst others.

Additional Fees

Administration Charge - Purchasers will be required to pay an administration fee of £1,800 inc VAT

Disbursements - Please see the legal pack for any disbursements listed that may become payable by the purchaser on completion.

View Larger Map

Disclaimer: The map preview provided above is for general guidance only and may not accurately reflect the exact location or surrounding buildings. Prospective buyers and interested parties are strongly advised to independently verify the precise location and surroundings before bidding.