For Sale By Auction | 12:00, 08 July 2025 | Lot 21

1 Mesnes Park Terrace, Wigan, WN1 1SU

Sold £300,000

  • Mixed Use
  • Tenure: Freehold

Call the team on 0161 925 3254 for more information

Auction Date

Tue 08/07/2025

Auction Time

12:00

Auction Venue

Live Stream

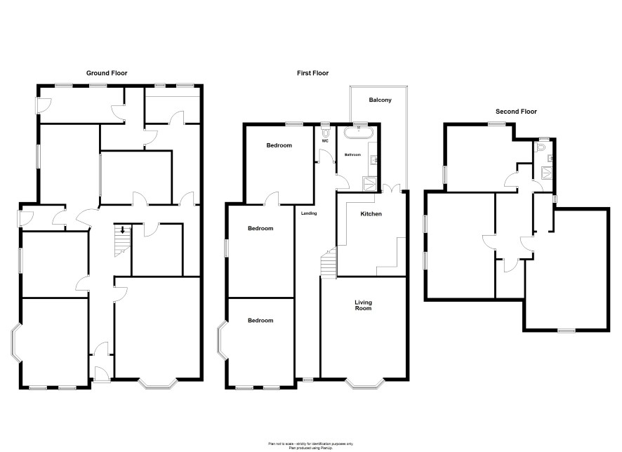
The lot on offer is a substantial end of terrace property, formerly an dental surgery, that is now offered with planning permission for the development of the ground floor from a dental surgery (Class E) to a five bedroom, five person, house in multiple occupation - HMO (Class C4) and retention of existing first floor and second floor accommodation (Class C3), which can also be another six person house in multiple occupation under permitted development, totalling a potential 11-bed HMO (Including demolition of existing garage). The property is a Victorian Villa on the corner of Mesnes Road overlooking Mesnes Park and located within a short stroll of Wigan Wallgate Rail Station and around 2/3 miles from Wigan Hospital. "The upper floors can be converted under permitted development into a 6 bed HMO (the property is classified as two separate dwellings). The ground floor has been granted approval to change from a dental practice (Class E), to a 5-bed HMO (Class C4). Therefore this property could be converted to an 11-bed HMO, or could be left as a large single dwelling for a family. The ground floor can be converted from CE to C4, and upstairs can be C4 as long as it does not exceed 6 bedrooms The accommodation needs to be viewed to appreciate the lot on offer as the property maintains many attractive features and whilst the building is suited to conversion as a whole (STP) it would also make a very substantial family home.

Tenure

Freehold

Services

Interested parties are requested to make their own enquiries to the relevant authorities as to the availability of services.

Local Authority

Wigan Metropolitan Borough Council - Council Tax Band A

Important Notice to Prospective Buyers:

We draw your attention to the Special Conditions of Sale within the Legal Pack, referring to other charges in addition to the purchase price which may become payable. Such costs may include Search Fees, reimbursement of Sellers costs and Legal Fees, and Transfer Fees amongst others.

Additional Fees

Administration Charge - In addition to the deposit Administration Charge: 1.2% inc VAT of the purchase price subject to a minimum of £1,500 inc VAT.

Disbursements - Please see the legal pack for any disbursements listed that may become payable by the purchaser on completion.

View Larger Map

Disclaimer: The map preview provided above is for general guidance only and may not accurately reflect the exact location or surrounding buildings. Prospective buyers and interested parties are strongly advised to independently verify the precise location and surroundings before bidding.