For Sale By Auction | 12:00, 09 December 2025

5 Lewis Street, Shaw, Oldham, OL2 8SN

*Guide | £100,000+ (plus fees)

  • End of Terrace House
  • 3 Bedrooms
  • Tenure: Leasehold

Call the team on 0161 925 3254 for more information

Auction Date

Tue 09/12/2025

Auction Time

12:00

Auction Venue

Live Stream

Viewing Times:

Mon 24 Nov

10:00am-10:30am

Mon 1 Dec

10:00am-10:30am

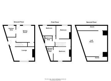
A three bedroom plus attic room end terraced property, part renovated and presenting an excellent opportunity for investors and developers. Internal accommodation comprising briefly of entrance hallway, lounge, dining room, kitchen, three first floor bedrooms, space for an en-suite off bedroom one and bathroom. There is also a useful attic room to the second floor accessed via drop down ladders off the first floor landing. Externally the property offers a large rear yard along with on street parking. Located in a popular and convenient location close to the amenities of Shaw, including schools, shops and transport links Lease Length - 960 years (less 1 day) from 5.1.1909 Ground Rent - £1.10s.0d

Tenure

Leasehold

Ground Floor

Lounge Dining Room Kitchen

First Floor

Bedroom 1 Bedroom 2 Bedroom 3 Bathroom Area Shower Room Area

Second Floor

Loft Room

Energy Efficiency Rating (EPC)

Current Rating E

Services

Interested parties are requested to make their own enquiries to the relevant authorities as to the availability of services.

Local Authority

Oldham Metropolitan Borough Council - Council tax band A

Important Notice to Prospective Buyers:

We draw your attention to the Special Conditions of Sale within the Legal Pack, referring to other charges in addition to the purchase price which may become payable. Such costs may include Search Fees, reimbursement of Sellers costs and Legal Fees, and Transfer Fees amongst others.

Additional Fees

Administration Charge - Purchasers will be required to pay an administration fee of 1.2% inc VAT, subject to a minimum of £1500 inc VAT.

Disbursements - Please see the legal pack for any disbursements listed that may become payable by the purchaser on completion.

View Larger Map

Disclaimer: The map preview provided above is for general guidance only and may not accurately reflect the exact location or surrounding buildings. Prospective buyers and interested parties are strongly advised to independently verify the precise location and surroundings before bidding.