Postponed | Lot 75

42 Kelvin Grove, Liverpool, Merseyside L8 3UE

Postponed

  • Commercial Property
  • Tenure: See Legal Pack

Call the team on 01772 772450 for more information

Auction Date

Wed 14/05/2025

Auction Time

12:00

Auction Venue

Online Auction

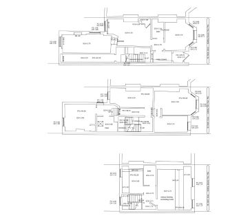
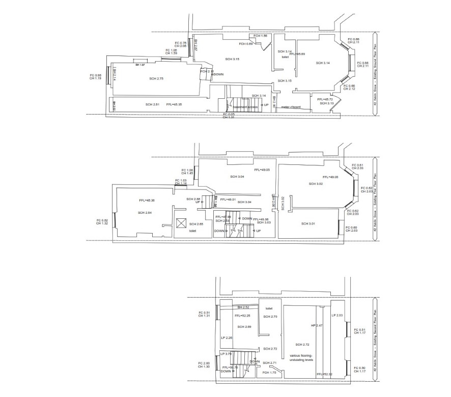
Three Storey End Townhouse

Three storey end townhouse which requires either full renovation or demolition and rebuild (STP). The property is currently wrapped in scaffolding. No internal access is available. Planning We are informed that an application was submitted to demolish the building in 2023/24. Previously the property benefitted from consent granted in July 2019 to convert the building from 3x flats to a 5 bed (3 bath) house - Application No:19F/1492. All interested parties are advised to consult with Liverpool City Council Planning Department prior to bidding – liverpool.gov.uk/planning-and-building-control/ The building is situated adjacent Placefirst’s Welsh Streets award winning refurbishment / redevelopment. The Welsh Streets are an important part of the Beatles’ Liverpool heritage, with Ringo Starr’s birthplace at 9 Madryn Street only a short distance from Kelvin Grove. Tenure: pending registration - see legal pack Title number: see legal pack Local Authority: Liverpool Finance is available on this lot. For a decision-in-principle visit togethermoney.com/amydip/

Tenure

See Legal Pack

IMPORTANT INFORMATION

Buying at auction is a contractual commitment, you are legally obliged to buy the lot on the terms of the sale memorandum at the price you bid. If you are the successful bidder, you are required to pay the deposit and auction fees immediately. As agent for the seller, we treat any failure to satisfy your obligations as your repudiation of the contract and the seller may then have a claim against you for breach of contract. You must not bid unless you wish to be bound by the common conditions of auction.

ANTI-MONEY LAUNDERING REGULATIONS

In accordance with Anti-Money Laundering Regulations, two forms of identification and confirmation of the source of funding will be required from the successful purchaser. Every effort has been made to confirm the accuracy of the lot details including any defect in the title both with the vendor and their solicitor. Auction House will not be held responsible for any failure to disclose any such defects. Any purchasers choosing to buy without viewing in person are doing so at their own risk and acknowledge that the auctioneer will not be held responsible for any issues that may arise due to them being unintentionally missed from the video or sales particulars. Please refer to legal pack for additional fees and the Auction Information document for guidance prior to bidding.

Energy Efficiency Rating (EPC)

Current Rating N/A

Local Authority

Liverpool City Council

Solicitors

Womble Bond Dickinson (UK) LLP, Ref: Womble Bond Dickinson (UK) LLP, Tel: 0345 415 0000

Important Notice to Prospective Buyers:

We draw your attention to the Special Conditions of Sale within the Legal Pack, referring to other charges in addition to the purchase price which may become payable. Such costs may include Search Fees, reimbursement of Sellers costs and Legal Fees, and Transfer Fees amongst others.

Additional Fees

Administration Charge - 2.5% inc VAT of the purchase price, subject to a minimum of £1980 inc VAT, payable on exchange of contracts.

Disbursements - Please see the legal pack for any disbursements listed that may become payable by the purchaser on completion.

View Larger Map

Disclaimer: The map preview provided above is for general guidance only and may not accurately reflect the exact location or surrounding buildings. Prospective buyers and interested parties are strongly advised to independently verify the precise location and surroundings before bidding.