For Sale By Auction | 00:00, 11 February 2026

Land Adj. to, 400-402 Lower Broughton Road, Salford, Greater Manchester M7 2GD

*Guide | £300,000 - £350,000 (plus fees)

  • Residential Development
  • Tenure: Leasehold. LA200556

Call the team on 01772 772450 for more information

Auction Date

Wed 11/02/2026

Auction Time

00:00

Auction Venue

Online Auction

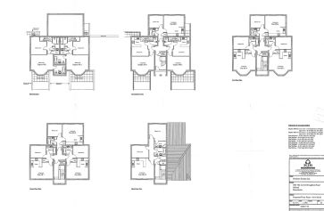
Potential Residential Development Site – Previous Consent For 10 x Flats

Rectangular site extending to approximately 600 m2 / 0.15 acre, situated on the east side of Lower Broughton Road, close to the junction with The Priory and the entrance to The Cliff (Manchester United FC) Training Ground. The site previously benefitted from planning consent for ten flats within a detached three/four storey building. The consent was granted in May 2007 from Salford Council ref 07/54388/FUL (alt ref 04/48536/FUL). The plans showed 3x 2 bed flats and 7x 1 bed flats, as follows: - Ground Floor (& Lower Ground Floor) – 2x 2 bed duplex Ground Floor – 1x 1 bed First Floor – 3x 1 bed Second Floor – 3x 1 bed Third Floor – 1 x 2bed All interested parties are advised to consult with Salford Council with regard to their intentions for the site, prior to bidding. Tenure: Long Leasehold Title number: LA200556 Length of Lease/Term: 900 years from 29 September 1880 Ground Rent : £1 pa Service Charge: £ Council Tax Band : Local Authority: Salford Finance is available on this lot. For a decision-in-principle visit togethermoney.com/amydip/

Tenure

Leasehold. LA200556

IMPORTANT INFORMATION

Buying at auction is a contractual commitment, you are legally obliged to buy the lot on the terms of the sale memorandum at the price you bid. If you are the successful bidder, you are required to pay the deposit and auction fees immediately. As agent for the seller, we treat any failure to satisfy your obligations as your repudiation of the contract and the seller may then have a claim against you for breach of contract. You must not bid unless you wish to be bound by the common conditions of auction.

ANTI-MONEY LAUNDERING REGULATIONS

In accordance with Anti-Money Laundering Regulations, two forms of identification and confirmation of the source of funding will be required from the successful purchaser. Every effort has been made to confirm the accuracy of the lot details including any defect in the title both with the vendor and their solicitor. Auction House will not be held responsible for any failure to disclose any such defects. Any purchasers choosing to buy without viewing in person are doing so at their own risk and acknowledge that the auctioneer will not be held responsible for any issues that may arise due to them being unintentionally missed from the video or sales particulars. Please refer to legal pack for additional fees and the Auction Information document for guidance prior to bidding.

Local Authority

Salford City Council

Solicitors

BBS Law, Ref: Daniel Berger, Tel: 0161 302 8355

Important Notice to Prospective Buyers:

We draw your attention to the Special Conditions of Sale within the Legal Pack, referring to other charges in addition to the purchase price which may become payable. Such costs may include Search Fees, reimbursement of Sellers costs and Legal Fees, and Transfer Fees amongst others.

Additional Fees

Administration Charge - 2.5% inc VAT of the purchase price, subject to a minimum of £2500 inc VAT, payable on exchange of contracts.

Disbursements - Please see the legal pack for any disbursements listed that may become payable by the purchaser on completion.

View Larger Map

Disclaimer: The map preview provided above is for general guidance only and may not accurately reflect the exact location or surrounding buildings. Prospective buyers and interested parties are strongly advised to independently verify the precise location and surroundings before bidding.