Sold Prior | Lot 61

25-27 High Street, Jedburgh, Roxburghshire TD8 6AQ

Sold Prior

  • Commercial Property
  • Tenure: Freehold

Call the team on 0141 339 4466 for more information

Auction Date

Thu 27/11/2025

Auction Time

14:00

Auction Venue

Live Stream

Exciting High Street development opportunity

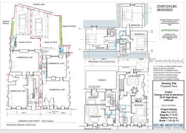
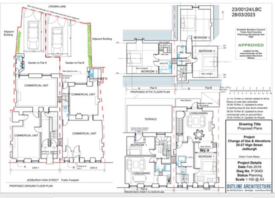
Going under the hammer is this superb opportunity to acquire this mixed-use development opportunity on High Street, Jedburgh. Formerly an insurance brokerage. The current owner has applied for and successfully been granted planning permission for a conversion for two commercial units and two apartments. If the purchaser were to follow through with current plans they are as follows. Commercial will comprise two commercial units with kitchenette and toilet facilities. Flat A will comprise kitchen/living/dining room, bedroom and shower room with access to terrace and on the attic level a further bedroom with ensuite bathroom. Flat B will comprise kitchen/living/dining room with access to a balcony, bedroom, shower room. On the attic level a further two bedrooms, shower room, WC. Both flats will benefit from small garden and parking space. Full details of planning can be accessed through Scottish Borders Council quoting reference 23/00124/LBC. The property currently has a rateable value of £9,900 if converted reallocations would be made. To ensure you do not miss out on this opportunity early viewing is highly recommended.

Tenure

Freehold

Area

25-27 High Street is situated on the Royal Burgh of Jedburgh’s high street. The town is home to “Mary Queen of Scots' House" and the 12th century Jedburgh Abbey, both of which are situated in the heart of this picturesque, historic town attracting many visitors throughout the year. Local amenities are easily accessible with a wide range of shops, restaurants, swimming pool and Health & Leisure Centre. There are a variety of outdoor pursuits in the area including fishing on the River Tweed and National Hunt racing. Golfing is available at a number of excellent courses including Jedburgh’s own 18-hole course and the nearby Roxburghe championship course (less than 15 minutes). Jedburgh Grammar Campus which was opened in 2020, provides schooling for all ages. Conveniently located, Jedburgh offers direct access to the A68, the main road linking Newcastle upon Tyne and Edinburgh. The major Border towns are within easy driving distance. Tweedbank (15 miles) has a station on the Borders Railway, offering a journey time to central Edinburgh of around 55 minutes.

Local Authority

Scottish Borders Council

Important Notice to Prospective Buyers:

We draw your attention to the Special Conditions of Sale within the Legal Pack, referring to other charges in addition to the purchase price which may become payable. Such costs may include Search Fees, reimbursement of Sellers costs and Legal Fees, and Transfer Fees amongst others.

Additional Fees

Administration Charge - 3.6% inc VAT of the purchase price, subject to a minimum of £3600 inc VAT, payable on exchange of contracts.

Disbursements - Please see the legal pack for any disbursements listed that may become payable by the purchaser on completion.

View Larger Map

Disclaimer: The map preview provided above is for general guidance only and may not accurately reflect the exact location or surrounding buildings. Prospective buyers and interested parties are strongly advised to independently verify the precise location and surroundings before bidding.