For Sale By Auction | 14:00, 27 November 2025

Plot of land to East of Victoria House, Lanrigg Road, Bathgate EH47 9LR

*Guide | £55,000 (plus fees)

  • Land
  • Tenure: Freehold

Call the team on 0141 339 4466 for more information

Auction Date

Thu 27/11/2025

Auction Time

14:00

Auction Venue

Live Stream

Development opportunity

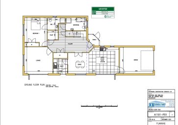
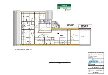
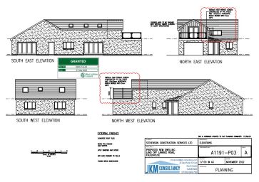
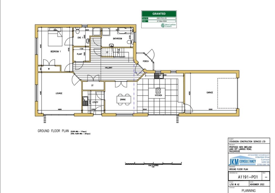
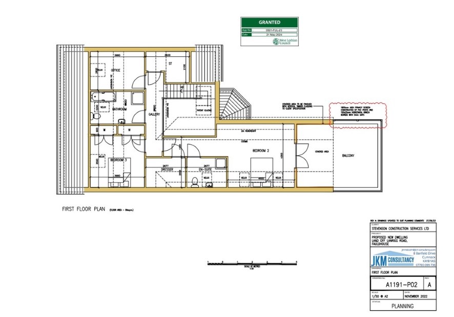
Going under the hammer is this superb development opportunity for a keen builder or developer. The plot of land is accessed by a private road and is circa 0.32 acres. There is full planning granted by West Lothian Council for a two storey detached house with lounge, kitchen/diner, garage, bedroom with ensuite and family bathroom on the ground floor. The first floor will have an office, bathroom, gallery and two further bedrooms one with ensuite and balcony. Full planning documents can be accessed through West Lothians planning portal using reference 0501/FUL/23. To ensure you do not miss out on this fantastic opportunity, early expression of interest is highly recommended.

Tenure

Freehold

Area

Fauldhouse is a small self contained community. Within the village there are a selection of shops, a post office, health centre and library. A new state of the art sports centre and swimming pool. Fauldhouse golf course is also located on the outskirts of the village. There are a good range of local nursery and primary schools, with High schools in the nearby towns of Whitburn and Blackburn. Fauldhouse boasts its own railway station with regular services to both Edinburgh and Glasgow city centre.

Local Authority

West Lothian Council

Important Notice to Prospective Buyers:

We draw your attention to the Special Conditions of Sale within the Legal Pack, referring to other charges in addition to the purchase price which may become payable. Such costs may include Search Fees, reimbursement of Sellers costs and Legal Fees, and Transfer Fees amongst others.

Additional Fees

Administration Charge - 3.6% inc VAT of the purchase price, subject to a minimum of £3600 inc VAT, payable on exchange of contracts.

Disbursements - Please see the legal pack for any disbursements listed that may become payable by the purchaser on completion.