For Sale By Auction | 14:00, 26 February 2026

Plots adjacent to Brora Crescent, Hamilton, Lanarkshire ML3 8LF

*Guide | £275,000 (plus fees)

  • Land
  • Tenure: See Legal Pack

Call the team on 0141 339 4466 for more information

Auction Date

Thu 26/02/2026

Auction Time

14:00

Auction Venue

Live Stream

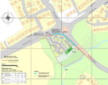
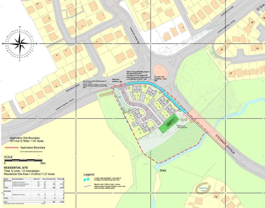
Two plots of land

If you’re looking for an outstanding new build opportunity, then you can’t miss this fantastic development plot to the south west of Hamilton town centre. Currently part of a larger title, with the vendor splitting the individual plots from the overall title on sale, the plots extend to approximately 1.27 acres and 0.73 acres with Planning in Principle approved under South Lanarkshire Planning Refs P-22-1466 (12 units – 10 no. 3 bedroom semi-detached and 2 no. 4 bedroom detached ) and P-23-0422 (5 units – 2 no. 3 bedroom semi-detached and 3 no. 4 bedroom detached). Section 75 agreements have been satisfied for both, although an Approval of Matters Specified in Conditions (AMSiC) application would be required prior to commencement of works. The popular location, attractive GDV potential, and competitive Guide Price is sure to attract strong levels of developer/builder demand. Early expression of interest is essential.

Tenure

See Legal Pack

Area

The Earnock area of Hamilton lies to the south west of Hamilton town centre in South Lanarkshire, with a number of new build developers active in the area. Hamilton is home to a wide variety of restaurants, bistros and pubs as well as excellent shopping facilities, sports amenities including golf courses, swimming baths, gyms and parks. There are several highly regarded schools as well as the nearby Hamilton College. For those commuting by public transport there are regular bus and train links throughout the surrounding area and into Glasgow.

Local Authority

South Lanarkshire Council

Important Notice to Prospective Buyers:

We draw your attention to the Special Conditions of Sale within the Legal Pack, referring to other charges in addition to the purchase price which may become payable. Such costs may include Search Fees, reimbursement of Sellers costs and Legal Fees, and Transfer Fees amongst others.

Additional Fees

Administration Charge - 3.6% inc VAT of the purchase price, subject to a minimum of £3600 inc VAT, payable on exchange of contracts.

Disbursements - Please see the legal pack for any disbursements listed that may become payable by the purchaser on completion.

View Larger Map

Disclaimer: The map preview provided above is for general guidance only and may not accurately reflect the exact location or surrounding buildings. Prospective buyers and interested parties are strongly advised to independently verify the precise location and surroundings before bidding.