For Sale By Auction | 14:00, 26 February 2026

Yard Bankend Industrial Estate, Bankend South, Jedburgh, Roxburghshire TD8 6ED

*Guide | £95,000 (plus fees)

  • Commercial Property
  • Tenure: Freehold

Call the team on 0141 339 4466 for more information

Auction Date

Thu 26/02/2026

Auction Time

14:00

Auction Venue

Live Stream

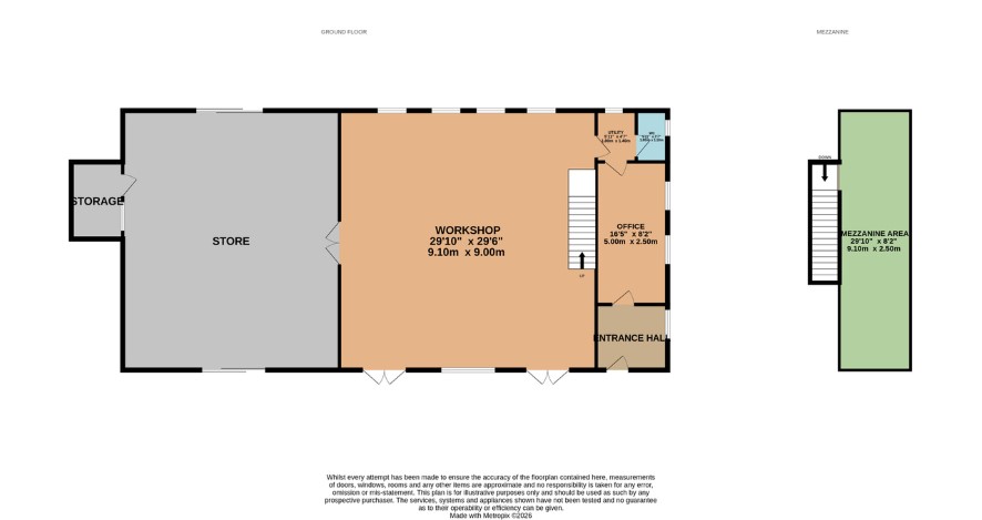
Industrial yard with commercial unit

A rare opportunity to acquire an industrial yard with detached commercial unit, located within the established Bankend Industrial Estate on the outskirts of Jedburgh. The subjects comprise an industrial yard, offering flexible use and suitable for a variety of industrial, storage, or trade-related purposes, subject to the appropriate consents. The property benefits from secure gated vehicular access, making it suitable for commercial vehicles, plant, and secure storage, and is situated within a well-established industrial setting surrounded by other commercial occupiers. The yard may also be suitable for subdivision, subject to obtaining all necessary planning and statutory consents, and may appeal to investors, developers, or owner-occupiers seeking an asset with future potential. The detached commercial unit comprises a workshop and store with barn doors, office accommodation, utility area, and WC. Externally, the unit further benefits from a fixed vehicular inspection ramp. The property has a current rateable value of £7,200 and may be eligible for Small Business Rates Relief, subject to occupier status and application to the local authority. The property is well placed for access to local road networks, serving Jedburgh and the wider Scottish Borders. Jedburgh itself provides a range of local amenities, with further commercial and business facilities available throughout the Borders region. Early viewing is strongly recommended.

Tenure

Freehold

Area

Jedburgh is a well-established market town in the Scottish Borders, strategically located close to the A68, providing direct access to Edinburgh and Newcastle. The town serves as a key commercial hub for the surrounding area, supporting a variety of trade, industrial, and service-based businesses. With a skilled local workforce, competitive operating costs, and limited supply of commercial premises, Jedburgh offers strong opportunities for investment, redevelopment, or owner-occupation. Its established industrial estates and regional connectivity make it particularly attractive to investors, developers, and business owners seeking affordable, flexible premises with growth potential.

Local Authority

Scottish Borders Council

Important Notice to Prospective Buyers:

We draw your attention to the Special Conditions of Sale within the Legal Pack, referring to other charges in addition to the purchase price which may become payable. Such costs may include Search Fees, reimbursement of Sellers costs and Legal Fees, and Transfer Fees amongst others.

Additional Fees

Administration Charge - 3.6% inc VAT of the purchase price, subject to a minimum of £3600 inc VAT, payable on exchange of contracts.

Disbursements - Please see the legal pack for any disbursements listed that may become payable by the purchaser on completion.

View Larger Map

Disclaimer: The map preview provided above is for general guidance only and may not accurately reflect the exact location or surrounding buildings. Prospective buyers and interested parties are strongly advised to independently verify the precise location and surroundings before bidding.