For Sale By Auction | 14:00, 22 April 2026 | Lot 11

81-83 High Street, Elgin, Moray IV30 1EA

*Guide | £150,000 (plus fees)

  • Commercial Property
  • Tenure: Freehold

Call the team on 0141 339 4466 for more information

Auction Date

Wed 22/04/2026

Auction Time

14:00

Auction Venue

Live Stream

Viewing Times:

Mon 20 Apr

10:30-11:00

THIS PROPERTY IS BEING SOLD BY LIVESTREAM AUCTION AT 2PM ON WEDNESDAY 22nd April.

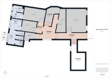
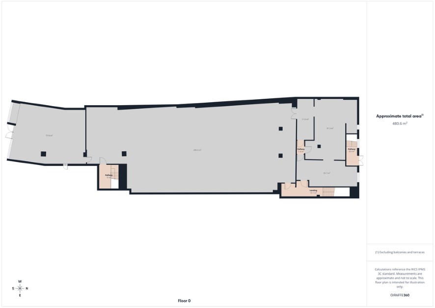
This substantial commercial development opportunity occupies a prime position in the heart of Elgin’s High Street. The property extends to approximately 710 sq. metres over ground floor and three upper floors. Previously occupied by M & Co, the property is now offered with vacant possession. The ground floor (circa 480 sq. metres) provides extensive retail space, with the upper floors formerly utilised for office and storage purposes. A variety of potential conversion options – residential, commercial or combination of both - could be considered subject, of course, to all required permissions. The competitive guide price is sure to attract strong levels of developer interest and, as such, early expression of interest is recommended. ** Note to Purchasers: The property currently forms part of a larger title, which will be separated by the vendor upon sale. As a result, an EPC and Rateable Value are not presently available **

Tenure

Freehold

Area

Elgin is a historic royal burgh and market town in Moray, north east Scotland, between Inverness (36 miles to the east) and Aberdeen (64 miles to the west). The town has enjoyed a period of regeneration in recent years, and the property is within close proximity of a number of local and national retailers and leisure options, and Elgin is also home to Moray College UHI. Excellent transport links are offered via the A96 road and rail links.

Local Authority

Moray Council

Important Notice to Prospective Buyers:

We draw your attention to the Special Conditions of Sale within the Legal Pack, referring to other charges in addition to the purchase price which may become payable. Such costs may include Search Fees, reimbursement of Sellers costs and Legal Fees, and Transfer Fees amongst others.

Additional Fees

Administration Charge - 3.6% inc VAT of the purchase price, subject to a minimum of £3600 inc VAT, payable on exchange of contracts.

Disbursements - Please see the legal pack for any disbursements listed that may become payable by the purchaser on completion.

View Larger Map

Disclaimer: The map preview provided above is for general guidance only and may not accurately reflect the exact location or surrounding buildings. Prospective buyers and interested parties are strongly advised to independently verify the precise location and surroundings before bidding.