For Sale By Auction | 14:00, 21 October 2025 | Lot 22

The Cottage, Pine Grange, Bath Road, Bournemouth, Dorset BH1 2PF

*Guide | £300,000 (plus fees)

  • Detached House
  • 3 Bedrooms
  • Tenure: Freehold

Call the team on 01202 160911 for more information

Auction Date

Tue 21/10/2025

Auction Time

14:00

Auction Venue

Live Stream

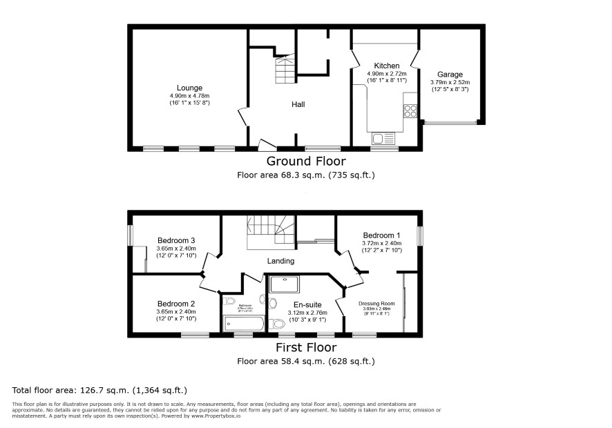
Detached Cottage And Garage

A three bedroom detached cottage, situated in Bournemouth, Dorset.

Tenure

Freehold

ACCOMMODATION

Entrance Hall Living Room: 16'1" x 15'8" Kitchen: 16'1" x 8'11" Landing: Bedroom One: 12'2" x 7'10" Dressing Room: 9'11" x 8'1" En-suite: 10'3" x 9'1" Bedroom Two: 12'0" x 7'10" Bedroom Three: 12'0" x 7'10" Bathroom: 9'1" x 5'11" Garage: 9'11" x 8'1"

VIEWINGS

Regular block viewing sessions will be provided in the lead up to the auction. Please telephone Auction House South West on 03456 461361 to request a viewing.

FULL DETAILS

Photographs, Dimensions, Floor Plans and Area Measurements (when available) are included within the full property details, online, via our website. All published information is to aid identification of the property and is not necessarily to scale.

NOTICE TO BIDDER

Please be aware that if your Bid is successful on Auction day the exchange of contracts will happen immediately after the Auction.

Local Authority

Bournemouth Borough Council

Important Notice to Prospective Buyers:

We draw your attention to the Special Conditions of Sale within the Legal Pack, referring to other charges in addition to the purchase price which may become payable. Such costs may include Search Fees, reimbursement of Sellers costs and Legal Fees, and Transfer Fees amongst others.

Additional Fees

Administration Charge - £1200 inc VAT payable on exchange of contracts.

Disbursements - Please see the legal pack for any disbursements listed that may become payable by the purchaser on completion.