For Sale By Auction | 14:00, 21 October 2025 | Lot 13

52 St. Johns Road, Yeovil, Somerset BA21 5NQ

*Guide | £137,000 (plus fees)

  • Semi-Detached House
  • 2 Bedrooms
  • Tenure: Freehold

Call the team on 0117 299 9889 for more information

Auction Date

Tue 21/10/2025

Auction Time

14:00

Auction Venue

Live Stream

Semi-detached Property

A two bedroom semi-detached property, situated in Yeovil, Somerset.

Tenure

Freehold

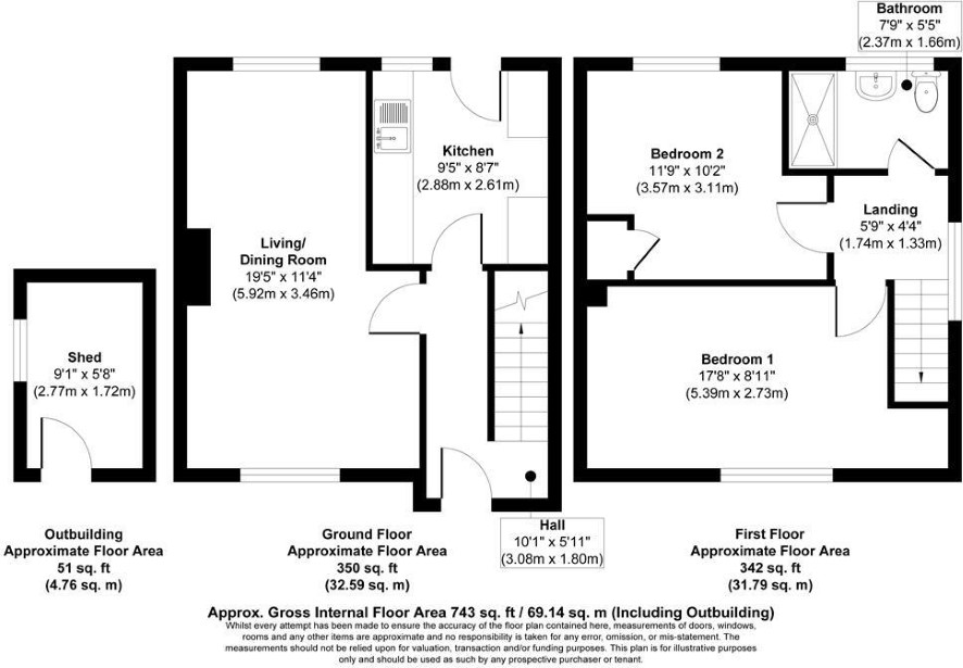
ACCOMMODATION

Entrance Hall: Living/Dining Room: 19'5" x 11'4" Kitchen: 9'5" x 8'7" Bedroom One: 17'8" x 8'11" Bedroom Two: 11'9" x 10'2" Bathroom: 5'9" x 4'4"

VIEWINGS

Regular block viewing sessions will be provided in the lead up to the auction. Please telephone Auction House South West on 03456 461361 to request a viewing.

FULL DETAILS

Photographs, Dimensions, Floor Plans and Area Measurements (when available) are included within the full property details, online, via our website. All published information is to aid identification of the property and is not necessarily to scale.

NOTICE TO BIDDER

Please be aware that if your Bid is successful on Auction day the exchange of contracts will happen immediately after the Auction.

Energy Efficiency Rating (EPC)

Current Rating C69

Solicitors

Capsticks LLP, Staple House, Ref: Capsticks LLP, Tel: 01962 678 300

Important Notice to Prospective Buyers:

We draw your attention to the Special Conditions of Sale within the Legal Pack, referring to other charges in addition to the purchase price which may become payable. Such costs may include Search Fees, reimbursement of Sellers costs and Legal Fees, and Transfer Fees amongst others.

Additional Fees

Buyer's Premium - £1500 inc VAT payable on exchange of contracts.

Administration Charge - £1200 inc VAT payable on exchange of contracts.

Disbursements - Please see the legal pack for any disbursements listed that may become payable by the purchaser on completion.