For Sale By Auction | 14:00, 02 December 2025 | Lot 12

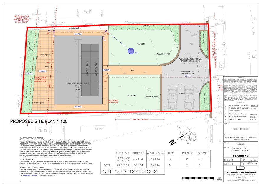
Land West of 14 Victoria, Victoria, Lostwithiel, Cornwall PL22 0AX

*Guide | £65,000 - £75,000 (plus fees)

  • Land
  • Tenure: Freehold

Call the team on 01872 484888 for more information

Auction Date

Tue 02/12/2025

Auction Time

14:00

Auction Venue

Live Stream

A Freehold Parcel of Land with Planning Permission.

Planning permission granted for proposed erection of a detached dwelling and the formation of a vehicular access situated in the heart of Lostwithiel. Planning application PA24/01762.

Tenure

Freehold

AUCTIONEERS NOTE

Planning Application - PA24/01762.

FULL DETAILS

Photographs, Dimensions, Floor Plans and Area Measurements (when available) are included within our full details online on our website. All published information is to aid identification of the property and is not necessarily to scale.

VIEWINGS

Please telephone Auction House South West on 03456 461361 to request a viewing.

NOTICE TO BIDDER

Please be aware that if your bid is successful on auction day the exchange of contracts will happen immediately after the auction.

Energy Efficiency Rating (EPC)

Current Rating N/A

Local Authority

Cornwall County Council

Solicitors

Nalders Solicitors, Ref: Ellen Regan, Tel: 01736 364014

Offered in association with

Situ8 Ltd (Company no. 06732514)

Important Notice to Prospective Buyers:

We draw your attention to the Special Conditions of Sale within the Legal Pack, referring to other charges in addition to the purchase price which may become payable. Such costs may include Search Fees, reimbursement of Sellers costs and Legal Fees, and Transfer Fees amongst others.

Additional Fees

Buyer's Premium - £400 inc VAT payable on exchange of contracts.

Administration Charge - £1200 inc VAT payable on exchange of contracts.

Disbursements - Please see the legal pack for any disbursements listed that may become payable by the purchaser on completion.

View Larger Map

Disclaimer: The map preview provided above is for general guidance only and may not accurately reflect the exact location or surrounding buildings. Prospective buyers and interested parties are strongly advised to independently verify the precise location and surroundings before bidding.