For Sale By Auction | 14:00, 02 December 2025 | Lot 16

Charlton Lodge, Bay View Road, Looe, Cornwall PL13 1JP

*Guide | £375,000 (plus fees)

  • Detached House
  • 4 Bedrooms
  • Tenure: Freehold

Call the team on 01872 484888 for more information

Auction Date

Tue 02/12/2025

Auction Time

14:00

Auction Venue

Live Stream

A Detached House

A four bedroom detached property set in a superb position with stunning sea views across to Looe island. The accommodation comprises; an entrance hallway, living room, kitchen, separate dining room, downstairs W.C, four bedrooms, master en-suite and a family bathroom with a separate W.C. There is a further loft room. Externally there is a rear garden, a sea facing sun terrace and a good sized garage.

Tenure

Freehold

AUCTIONEERS NOTE

A historical concrete screening test was carried out on the property in 2012, the report is available to download within the legal pack. We recommend buyers carry out their own due diligence prior to auction day. Please note - Probate has not been granted on this property and completion will be 20 working days or 7 days after the seller’s solicitor has seen the Grant of Probate whichever is later.

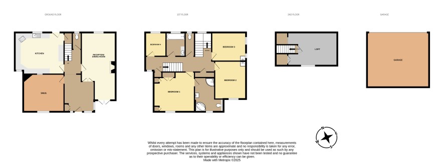
ACCOMMODATION

Ground Floor Entrance Hallway Living Room - 22.8m max x 11.5m max Dining Room - 13.7m x 12.7m Kitchen - 16.5m max x 13.11m max Downstairs Cloakroom First Floor Master Bedroom - 13.9m x 13.1m En-suite Bedroom Two - 12.8m x 10.5m Bedroom Three - 11.6m x 9.7m Bedroom Four - 7.11m x 6.11m Family Bathroom Separate W.C Loft Room - 20.6m max x 11.1m Garage - 20.3m x 18.3m

FULL DETAILS

Photographs, Dimensions, Floor Plans and Area Measurements (when available) are included within our full details online on our website. All published information is to aid identification of the property and is not necessarily to scale.

VIEWINGS

Please telephone Auction House South West on 03456 461361 to request a viewing.

NOTICE TO BIDDER

Please be aware that if your bid is successful on auction day the exchange of contracts will happen immediately after the auction.

Energy Efficiency Rating (EPC)

Current Rating D68

Local Authority

Cornwall County Council

Solicitors

Devall Law, 27 Middle Road, Ref: Devall Law, Tel: 01489 579 804

Important Notice to Prospective Buyers:

We draw your attention to the Special Conditions of Sale within the Legal Pack, referring to other charges in addition to the purchase price which may become payable. Such costs may include Search Fees, reimbursement of Sellers costs and Legal Fees, and Transfer Fees amongst others.

Additional Fees

Buyer's Premium - £480 inc VAT payable on exchange of contracts.

Administration Charge - £1200 inc VAT payable on exchange of contracts.

Disbursements - Please see the legal pack for any disbursements listed that may become payable by the purchaser on completion.

View Larger Map

Disclaimer: The map preview provided above is for general guidance only and may not accurately reflect the exact location or surrounding buildings. Prospective buyers and interested parties are strongly advised to independently verify the precise location and surroundings before bidding.