For Sale By Auction | 11:00, 11 February 2026

The Grooms Flat & Farriers Den, Treglossick, St. Keverne, Helston, Cornwall TR12 6PS

*Guide | £250,000 (plus fees)

  • Barn Conversion
  • 3 Bedrooms
  • Tenure: Freehold

Call the team on 01872 484888 for more information

Auction Date

Wed 11/02/2026

Auction Time

11:00

Auction Venue

Live Stream

A Grade II Listed Barn

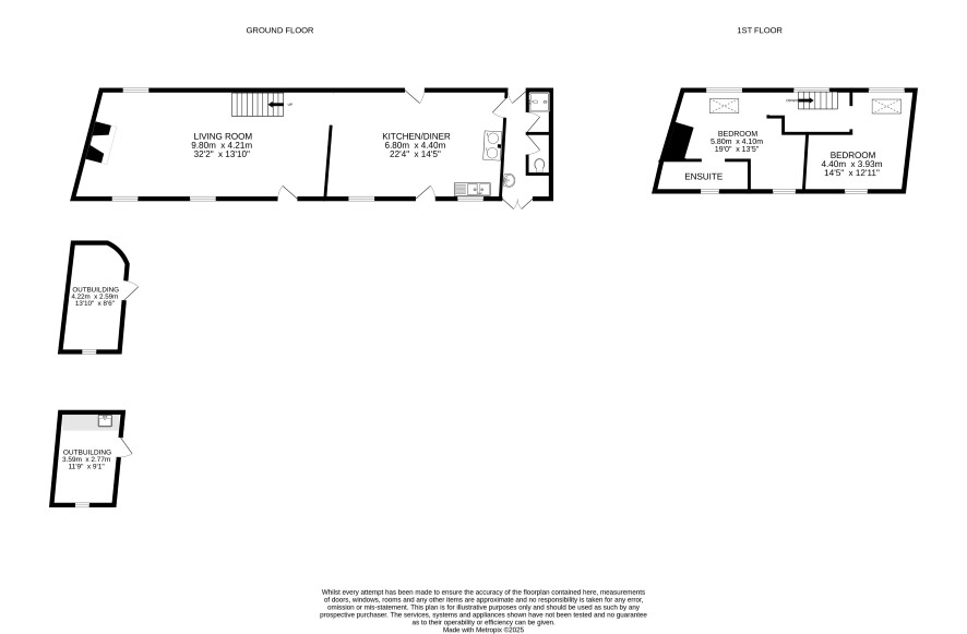
Located in a countryside setting on the outskirts of Porthallow and St Keverne, this part-completed barn conversion sits close to the beach as well as primary and secondary schools. Once finished, the accommodation will comprise on the ground floor: a living room, kitchen/diner, downstairs shower room and a separate W.C. On the first floor there are two double bedrooms, with the master benefiting from en-suite facilities. Externally, the property offers a rear garden of approximately 0.5 acres. Parking is available to the rear for approximately 4–5 vehicles. The site also includes two outbuildings, one of which has historically been used as an Airbnb, along with a storage container. There is planning permission in place for a rear extension which when built will offer a further bedroom and a shower room under planning reference PA23/08618.

Tenure

Freehold

AUCTIONEERS NOTE

The property has the following planning consents PA23/08619, PA23/08618 and PA25/00486. Further information with regards to these planning consents are available on the Cornwall council website. The seller has part completed the barn conversion with the following works complete - A new Spanish slate roof (signed off) in 2023. Full restoration of cob walls, lime rendering and pointing both internal and external 2023-25. New treatment plant installed in 2023. Underfloor heating pipework (wet) installed throughout ground floor in 2024. New slate kitchen floor laid in 2024. Dig out is completed for rear extension. New hardwood double glazed doors and windows downstairs (signed off) All woodwork has been treated throughout. Outbuilding with potential for Airbnb. A large well in the back garden with potential as an alternative water source subject to water testing. Build materials included with auction - Metal guttering for entire extension, structural timbers of various lengths, various electrical cabling, sockets etc, NHL2 - 8 bags for cob scratch coat upstairs, Large double glazed glass and larch lintel for extension between barn and outbuilding, a new cast iron roll top bath and shower.

ACCOMMODATION

Living Room - 32"2' x 13"10' Kitchen/Dining Room - 22"4' x 14"5' Downstairs W.C Shower Room Master Bedroom - 19" x 13"5' En-Suite Bedroom Two - 14"5' x 12"11' Outbuilding - 13"10' x 8"6' Outbuilding (Former Airbnb) - 11"9' x 9"1'

FULL DETAILS

Photographs, Dimensions, Floor Plans and Area Measurements (when available) are included within our full details online on our website. All published information is to aid identification of the property and is not necessarily to scale.

VIEWINGS

Please telephone Auction House South West on 03456 461361 to request a viewing.

NOTICE TO BIDDER

Please be aware that if your bid is successful on auction day the exchange of contracts will happen immediately after the auction.

Energy Efficiency Rating (EPC)

Current Rating G1

Local Authority

Cornwall County Council

Solicitors

Devall Law, 27 Middle Road, Ref: Devall Law, Tel: 01489 579 804

Offered in association with

The Mather Partnership 25 Meneage Street Helston Cornwall, TR13 8AA

Important Notice to Prospective Buyers:

We draw your attention to the Special Conditions of Sale within the Legal Pack, referring to other charges in addition to the purchase price which may become payable. Such costs may include Search Fees, reimbursement of Sellers costs and Legal Fees, and Transfer Fees amongst others.

Additional Fees

Buyer's Premium - £600 inc VAT payable on exchange of contracts.

Administration Charge - £1200 inc VAT payable on exchange of contracts.

Disbursements - Please see the legal pack for any disbursements listed that may become payable by the purchaser on completion.

View Larger Map

Disclaimer: The map preview provided above is for general guidance only and may not accurately reflect the exact location or surrounding buildings. Prospective buyers and interested parties are strongly advised to independently verify the precise location and surroundings before bidding.