For Sale By Auction | 11:00, 07 May 2026 | Lot 22

96 Cheddon Road, Taunton, Somerset TA2 7DW

*Guide | £60,000 (plus fees)

  • Terraced House
  • 2 Bedrooms
  • Tenure: Freehold

Call the team on 01752 474200 for more information

Auction Date

Thu 07/05/2026

Auction Time

11:00

Auction Venue

Live Stream

Two Bedroom Terrace House

A two double bedroom Victorian mid-terrace house requiring full modernisation and renovation. Conveniently located for Taunton town centre and the railway station. The property offers two reception rooms and a good-sized rear garden, with potential to improve.

Tenure

Freehold

ACCOMMODATION

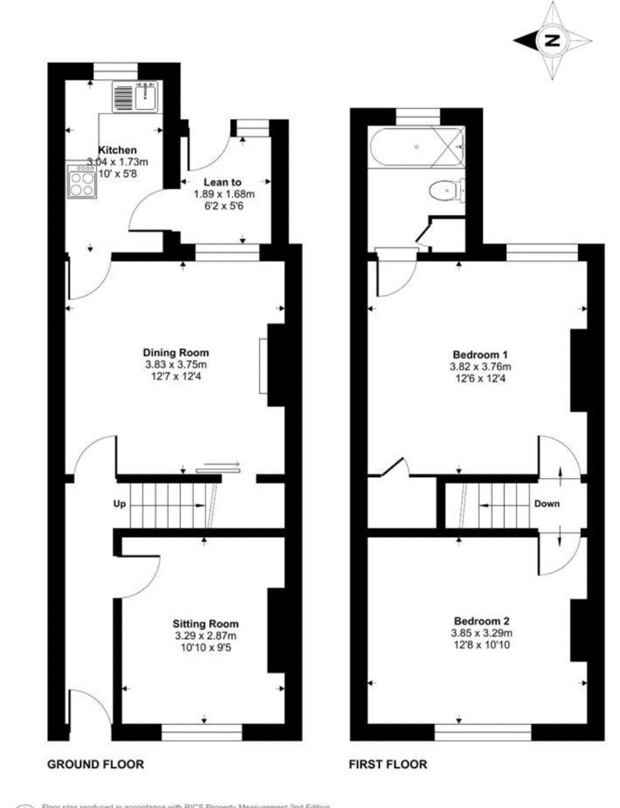
GROUND FLOOR Entrance Hall Living Room: 3.29 x 3.75m Dining Room: 3.83m x 3.75m Kitchen: 3.04m x 1.73m Lean To/ Utility: 1.89m x 1.68m FIRST FLOOR Bedroom One: 3.82m x 3.76m Bedroom Two: 3.85m x 3.29m Bathroom:

FULL DETAILS

Photographs, Dimensions, Floor Plans and Area Measurements (when available) are included within the full property details, online, via our website. All published information is to aid identification of the property and is not necessarily to scale.

VIEWINGS

Regular block viewing sessions will be provided in the lead up to the auction. Please telephone Auction House South West on 03456 461361 to request a viewing.

NOTICE TO BIDDER

Please be aware that if your bid is successful on auction day the exchange of contracts will happen immediately after the auction.

Energy Efficiency Rating (EPC)

Current Rating E52

Local Authority

Taunton Deane District Council

Solicitors

Ralli Solicitors LLP, Ref: Ben Eaton

Important Notice to Prospective Buyers:

We draw your attention to the Special Conditions of Sale within the Legal Pack, referring to other charges in addition to the purchase price which may become payable. Such costs may include Search Fees, reimbursement of Sellers costs and Legal Fees, and Transfer Fees amongst others.

Additional Fees

Buyer's Premium - £1200 inc VAT payable on exchange of contracts.

Administration Charge - £1200 inc VAT payable on exchange of contracts.

Disbursements - Please see the legal pack for any disbursements listed that may become payable by the purchaser on completion.

View Larger Map

Disclaimer: The map preview provided above is for general guidance only and may not accurately reflect the exact location or surrounding buildings. Prospective buyers and interested parties are strongly advised to independently verify the precise location and surroundings before bidding.