For Sale By Auction | 2.30pm, 24 April 2025 | Lot 19

First Floor Flat, 19 Brighton Road, Newhaven, East Sussex, BN9 9NA

Sold

  • Apartment
  • 1 Bedroom

Call the team on 01273 201989 for more information

Auction Date

Thu 24/04/2025

Auction Time

2.30pm

Auction Venue

Live Stream

Vacant First Floor 1 Bedroom Flat

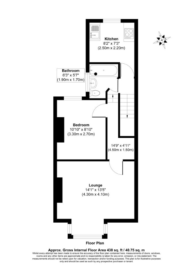
Leasehold self contained first floor flat, within a period conversion. Brighton Road comprises of a living room, bedroom, bathroom and kitchen. Situation The property is located on Brighton Road, close to Newhaven town centre with its multiple amenities, including Newhaven train station with direct routes along the coast to Brighton. Location Pin (What3Words): goods.punt.tweezers https://w3w.co/goods.punt.tweezers Accommodation Lounge - 4.30 x 4.10 Hallway - 4.50 x 1.50 Bedroom - 3.30 x 2.70 Bathroom - 1.90 x 1.70 Kitchen - 2.50 x 2.20 Total Floor Area - 40.75 sq.m. NB WE DRAW YOUR ATTENTION TO THE SPECIAL CONDITIONS IN THE LEGAL PACK, REFERRING TO BUYERS PREMIUM OF £1500 (INC VAT) AND OTHER CHARGES IN ADDITION TO THE PURCHASE PRICE. PLEASE ENSURE YOU READ THE SPECIAL CONDITIONS THOROUGHLY Tenure Leasehold - 99 lease, from 4 April 1985 (approximately 59 years remaining) Ground rent - £25 pa fixed. Council Tax - Band A EPC Rating - E

Lot Type

Vacant Residential Flat For Improvement

Important Notice to Prospective Buyers:

We draw your attention to the Special Conditions of Sale within the Legal Pack, referring to other charges in addition to the purchase price which may become payable. Such costs may include Search Fees, reimbursement of Sellers costs and Legal Fees, and Transfer Fees amongst others.

Additional Fees

Administration Charge - Purchasers will be required to pay an Administration fee of 1% (inc VAT) of the sale price, subject to a minimum of £1,750 (inc VAT)

Disbursements - Please see the legal pack for any disbursements listed that may become payable by the purchaser on completion.

View Larger Map

Disclaimer: The map preview provided above is for general guidance only and may not accurately reflect the exact location or surrounding buildings. Prospective buyers and interested parties are strongly advised to independently verify the precise location and surroundings before bidding.