For Sale By Auction | 2.30pm, 23 October 2025 | Lot 18

First Floor Flat, 144 Laburnum Grove, Portsmouth, PO2 0ET

Sold After

  • Apartment
  • 2 Bedrooms

Call the team on 01273 201989 for more information

Auction Date

Thu 23/10/2025

Auction Time

2.30pm

Auction Venue

Live Stream

Vacant Leasehold 2 x Bedroom Flat - Requiring Refurbishment

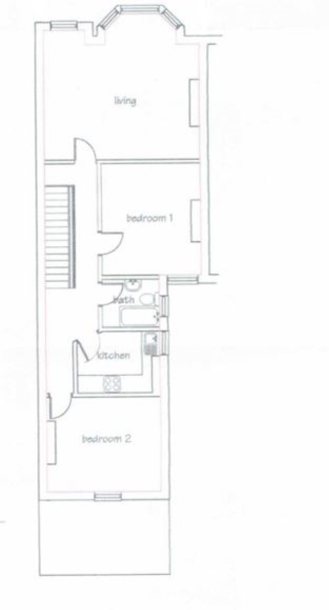
A two bedroom first floor flat within a period conversion comprising; living room, kitchen, two double bedrooms and shower room. *The property is in shell condition - all bathroom and kitchen fittings, have been stripped out* Situation The property is within walking distance of local shops and restaurants. Portsmouth International Port and cross Channel ferries are just over a mile away, along with. Portsmouth & Southsea mainline railway station (London Victoria 110 minutes). Location Pin (What3Words): added.bags.goad https://what3words.com/added.bags.goad Accommodation Living Room - 5.3m x 4.8m Kitchen - 2.6m x 2m Bedroom One - 3.7m x 3.4m Bedroom Two - 3.5m x 3.1m Shower Room - 1.9m x 1.6m Total Floor Area - 73 sq.m. (taken from EPC) NB WE DRAW YOUR ATTENTION TO THE SPECIAL CONDITIONS IN THE LEGAL PACK, REFERRING TO BUYERS PREMIUM OF £1,200 (INC VAT) AND OTHER CHARGES IN ADDITION TO THE PURCHASE PRICE. PLEASE ENSURE YOU READ THE SPECIAL CONDITIONS THOROUGHLY Tenure Leasehold - 125 year lease, from 1st January 2007 (approximately 106 years remaining) Ground rent - Peppercorn Council Tax - Band A EPC Rating - E

Lot Type

Residential For Improvement

Important Notice to Prospective Buyers:

We draw your attention to the Special Conditions of Sale within the Legal Pack, referring to other charges in addition to the purchase price which may become payable. Such costs may include Search Fees, reimbursement of Sellers costs and Legal Fees, and Transfer Fees amongst others.

Additional Fees

Administration Charge - Purchasers will be required to pay an Administration fee of 1% (inc VAT) of the sale price, subject to a minimum of £1,750 (inc VAT)

Disbursements - Please see the legal pack for any disbursements listed that may become payable by the purchaser on completion.

View Larger Map

Disclaimer: The map preview provided above is for general guidance only and may not accurately reflect the exact location or surrounding buildings. Prospective buyers and interested parties are strongly advised to independently verify the precise location and surroundings before bidding.