For Sale By Auction | 12:00, 22 October 2025 | Lot 38

Flats 1-4, 112 Lady Pit Lane, Leeds, West Yorkshire LS11 6EE

*Guide | £140,000 (plus fees)

  • Terraced House

Call the team on 0113 393 3482 for more information

Auction Date

Wed 22/10/2025

Auction Time

12:00

Auction Venue

Live Stream

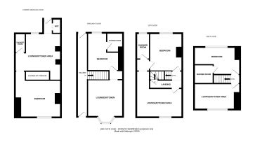
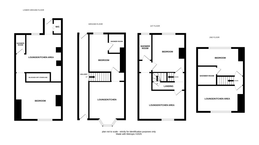
This substantial through terrace property was converted into four self-contained one bedroom flats over 25 years ago. At present, three are let (with no arrears at the time of writing) and generating an annual income of £24,228 however, this is likely to increase to £32,310 when the final flat is let. Based on the quoted guide price this equates to an impressive potential return of 23%! Each flat has been refurbished in the last 4 years and has its own coin operated electric meter. The flats are all separately rated for council tax. The property is located in Beeston, south Leeds, an area that remains incredibly popular with investors with the city centre just over a mile away. Number 110 next door is also available to buy in this auction.

Lower Ground Floor

Living/kitchen, bedroom, WC and shower room

Ground Floor

Living/kitchen, bedroom and shower room

First Floor

Living/kitchen, bedroom and shower room

Second Floor

Living/kitchen, bedroom and shower room

Additional Information

Council Tax

Band A (each flat)

EPC

Flat 1 Rating D Flat 2 Rating D Flat 3 Rating E Flat 4 Rating E

Tenure

Freehold.

Charges & Payments

In addition to the deposit Administration Charge: 1.2% inc VAT of the purchase price subject to a minimum of £1,500 inc VAT. Searches £300 inc VAT.

Important Notice to Prospective Buyers:

We draw your attention to the Special Conditions of Sale within the Legal Pack, referring to other charges in addition to the purchase price which may become payable. Such costs may include Search Fees, reimbursement of Sellers costs and Legal Fees, and Transfer Fees amongst others.

Additional Fees

Administration Charge - See above

Disbursements - Please see the legal pack for any disbursements listed that may become payable by the purchaser on completion.