Sold Prior | Lot 65

40 Tyas Grove, Leeds, West Yorkshire LS9 9BG

Sold Prior

  • Semi-Detached House
  • 5 Bedrooms

Call the team on 0113 393 3482 for more information

Auction Date

Wed 22/10/2025

Auction Time

12:00

Auction Venue

Live Stream

This is a unique opportunity to purchase a larger than average, semi detached house and would appeal to someone seeking a refurbishment project. The house offers five bedrooms, two reception rooms and accommodation over four floors, plus a rear garden with the option of off street parking. Overall the property is in poor condition and requires a substantial refurbishment, but once complete, this would make an excellent family home. The property is located in Osmondthorpe, a residential area one mile East of Leeds City Centre. There are plenty of local amenities in easy reach including schools, supermarkets and shops.

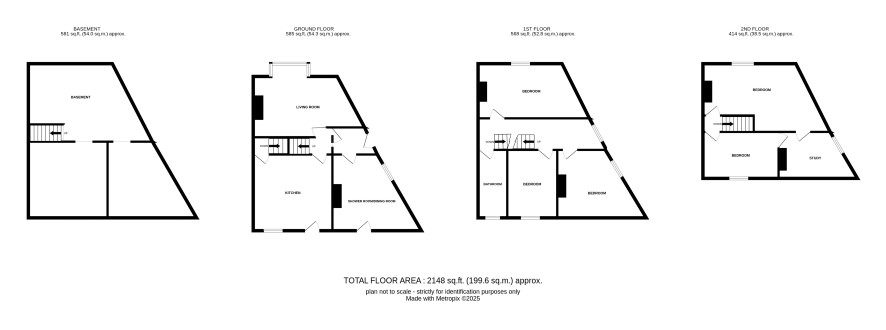
Cellar

Storage.

Ground Floor

Living room, kitchen and a dining room / shower room.

First Floor

Three bedrooms and a bathroom.

Second Floor

Two bedrooms and a study.

Externally

Gardens / yards to the front and rear.

ADDITIONAL INFORMATION

Council Tax

Band B.

EPC

E

Tenure

Freehold.

Charges & Payments

In addition to the deposit Administration Charge: 1.2% inc VAT of the purchase price subject to a minimum of £1,500 inc VAT. Searches £300 inc VAT

Important Notice to Prospective Buyers:

We draw your attention to the Special Conditions of Sale within the Legal Pack, referring to other charges in addition to the purchase price which may become payable. Such costs may include Search Fees, reimbursement of Sellers costs and Legal Fees, and Transfer Fees amongst others.

Additional Fees

Administration Charge - See above

Disbursements - Please see the legal pack for any disbursements listed that may become payable by the purchaser on completion.