For Sale By Auction | 12:00, 22 October 2025 | Lot 79

11 Myers Lane, Bradford, West Yorkshire BD2 4EP

*Guide | £80,000 (plus fees)

  • Detached House
  • 3 Bedrooms

Call the team on 0113 393 3482 for more information

Auction Date

Wed 22/10/2025

Auction Time

12:00

Auction Venue

Live Stream

This three bedroom detached house with off street parking, garage and a garden is offered for sale via traditional auction. The property does require renovation, however would make a great project, family home or addition to a rental portfolio. Situated in this very popular residential area of Eccleshill and in close proximity to well regarded schools, local amenities and good transport routes. Please note: a 14 day completion applies to this lot.

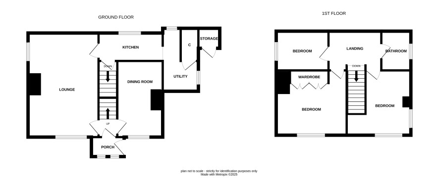
Ground floor

Lounge, dining room, kitchen and utility room

First floor

Three bedrooms and a bathroom

External

Garden and garage

Additional Information

Council Tax

Band B

EPC Rating

D

Tenure

Freehold

Charges and Payments

In addition to the deposit Administration Charge: 1.2% inc VAT of the purchase price subject to a minimum of £1,500 inc VAT. Buyer’s Premium: £1,500 inc VAT.

Important Notice to Prospective Buyers:

We draw your attention to the Special Conditions of Sale within the Legal Pack, referring to other charges in addition to the purchase price which may become payable. Such costs may include Search Fees, reimbursement of Sellers costs and Legal Fees, and Transfer Fees amongst others.

Additional Fees

Administration Charge - See above

Disbursements - Please see the legal pack for any disbursements listed that may become payable by the purchaser on completion.