For Sale By Auction | 12:00, 22 October 2025 | Lot 59

192 Stanks Drive, Leeds, West Yorkshire LS14 5QD

*Guide | £170,000 (plus fees)

  • Semi-Detached House
  • 3 Bedrooms

Call the team on 0113 393 3482 for more information

Auction Date

Wed 22/10/2025

Auction Time

12:00

Auction Venue

Live Stream

This three bedroom semi detached house with driveway, integral garage and gardens is offered for sale via traditional auction. The property is in reasonable condition, however could be internally improved should a buyer wish. This would make a great addition to a rental portfolio. Comparable properties have been listed on the open market for £240,000. Located in a popular area being well served by local public transport links. For the commuter ease of access to Wetherby Road and Leeds city centre as well as the A1/M1 Link Road. Shopping facilities can be found at the Tesco Extra Centre which has a bus station and Crossgates with its wealth of amenities including a local railway station.

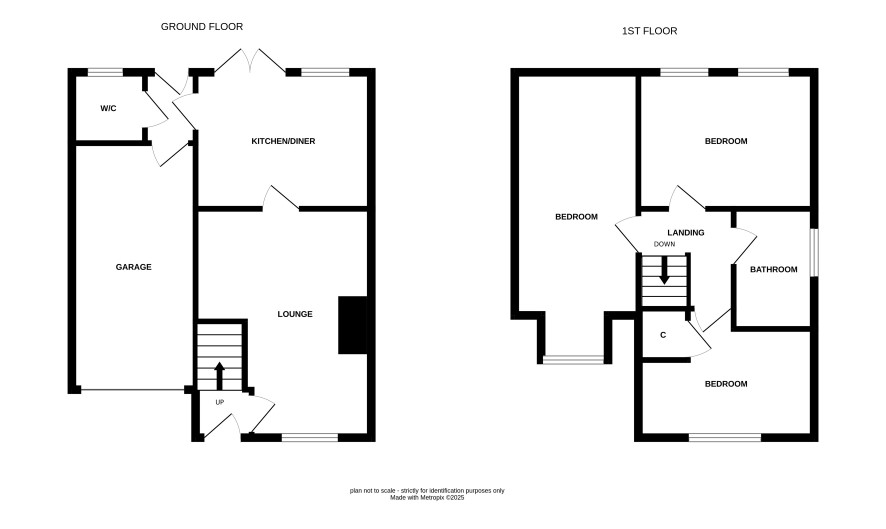
Ground Floor

Lounge, kitchen/diner, downstairs WC and garage

First Floor

Three bedrooms and a bathroom

Externally

Driveway and gardens

Additional Information

Council Tax

Leeds City Council - Band B

EPC Rating

C

Tenure

Freehold

Charges and Payments

In addition to the deposit Administration Charge: 1.2% inc VAT of the purchase price subject to a minimum of £1,500 inc VAT. Searches £300 inc VAT.

Important Notice to Prospective Buyers:

We draw your attention to the Special Conditions of Sale within the Legal Pack, referring to other charges in addition to the purchase price which may become payable. Such costs may include Search Fees, reimbursement of Sellers costs and Legal Fees, and Transfer Fees amongst others.

Additional Fees

Administration Charge - See above

Disbursements - Please see the legal pack for any disbursements listed that may become payable by the purchaser on completion.